Робочий майданчик виробничих будівель
Міністерство освіти і науки України
Запорізька державна інженерна академія
Кафедра МБГ
КУРСОВА РОБОТА
з дисципліни "Металеві конструкції"
На тему: "Робочий майданчик виробничих будівель"
Запоріжжя
2010
1. ВИБІР РАЦІОНАЛЬНОЇ СХЕМИ БАЛОЧНОЇ КЛІТКИ
Згідно завдання до курсової роботи та рекомендацій п.2 (1) приймаємо дві схеми балочної клітки: загального та ускладненого типу.

Рисунок 1 – Компоновочна схема балочної клітки:
а – нормального типу; б – ускладненого типу.
1.1 Розрахунок настилу
Розрахунок товщини настилу проводимо згідно рівняння 1 (1):
, (1.1)
де
- відношення прольоту настилу до його граничного прогину;
- нормативне навантаження згідно завдання,
;
- модуль деформації сталі;
- коефіцієнт Пуассона для сталі.
Розрахунок горизонтальної опорної реакції обчислюємо за формулою 2 (1):
, (1.2)
де
- відносний прогин настилу;
- коефіцієнт надійності за наантаженням.
Із умов міцності (1) знаходимо кати кутових швів кріплення настилу:
, (1.3)
, (1.4)
де
- коефіцієнти, що примається за табл.7д (1);
- розрахунковий опір металу шва (за табл.6д (1)),
;
- розрахунковий опір шва за межею сплавлення (за табл.5д (1)),
;
- коефіцієнт надійності за призначенням (за табл.1д (1));
- коефіцієнт умови роботи конструкцій.
Катет шва приймаємо за більшим із знайдених значень, але не меньше мінимального, яке вказане у табл.8 додатку до (1).
1.1.1 Розрахунок настилу балочної клітки нормального типу
За формулою 1.1 розраховуємо товщину настилу балочної клітки:

Згідно сортаменту листової сталі приймаємо лист товщиною
.
За формулою 1.2 розраховуємо горизонтальну опорну реакцію в настилі:
![]()
За формулами 1.3 та 1.4 знаходимо катет кутвих швів кріплення настилу щодо умов ручної зварки електродами Е46:
![]()
![]()
Згідно табл.8 додатку до (1) приймаємо катет шва
.
1.1.2 Розрахунок настилу балочної клітки ускладненого типу
За формулою 1.1 розраховуємо товщину настилу балочної клітки:

Згідно сортаменту листової сталі приймаємо лист товщиною
.
За формулою 1.2 розраховуємо горизонтальну опорну реакцію в настилі:
![]()
За формулами 1.3 та 1.4 знаходимо катет кутвих швів кріплення настилу щодо умов ручної зварки електродами Е46:
![]()
![]()
Згідно табл.8 додатку до (1) приймаємо катет шва
.
1.2 Розрахунок балок настилу
Визначаємо нормативні і розрахункові навантаження на балку за формулами:
; (1.5)
; (1.6)
; (1.7)
; (1.8)
де
- нормативне навантаження від власної ваги настилу,
;
- нормативне навантаження від власної ваги балок настилу,
.
Нормативне навантаження від власної ваги балок настилу розраховуємо за формулою:
, (1.9)
де
- лінійна густина балки настилу,
;
- кількість балок настилу в частині балочної клітини за розмірами
;
- крок допоміжних балок,
;
- крок колон балочної,
;
- коефіцієнти надійності за навантаженням (
).
Визначаємо граничні значення згинального моменту та перерізуючої сили за формулами:
(1.10)
(1.11)
Визначаємо потрібний момент опору за формулою 8 (1):
(1.12)
Перевірку міцності прийнятого перерізу виконуємо за фомулою 9 (1):
, (1.13)
де
- коефіцієнт роботи матеріалу.
Міцність за дотичними напруженнями визначаємо за формулою 11 (1):
, (1.14)
де
- моменти інерції обраного перерізу балки настилу;
- товщина стінки профілю,
;
- розрахунковий опір сталі зрізу,
.
Жорсткість балки настилу перевіряємо за формулою 12 (1):
(1.15)
1.2.1 Розрахунок балок настилу балочної клітки нормального типу
За формулами 1.5 та 1.7 визначаємо нормативні і розрахункові навантаження на балку настилу:
![]()
![]()
За формулами 1.10 та 1.11 визначаємо граничні значення згинального моменту та перерізуючої сили:
![]()
![]()
За формулою 1.12 визначаємо потрібний момент опору балки настилу:
![]()
з сортаменту фасонного прокату приймаємо наступну за кроком двотаврову балку №20 з характеристиками:
;
;
;
.
За формулою 1.13 проводимо перевірку міцності прийнятого перерізу:
![]()
За формулою 1.14 проводимо перевірку міцності прийнятого перерізу:
![]()
За формулою 1.15 перевіряємо жорсткість балки настилу:
![]()
Усі умови виконуються, таким чином для даної схеми приймаємо балки настилу з двотаврового профілю ý20.
1.2.2 Розрахунок балок настилу балочної клітки ускладненого типу
За формулами 1.5 та 1.7 визначаємо нормативні і розрахункові навантаження на балку настилу:
![]()
![]()
За формулами 1.10 та 1.11 визначаємо граничні значення згинального моменту та перерізуючої сили:
![]()
![]()
За формулою 1.12 визначаємо потрібний момент опору балки настилу:
![]()
З сортаменту фасонного прокату приймаємо двотаврову балку №14 з характеристиками:
;
;
;
.
За формулою 1.13 проводимо перевірку міцності прийнятого перерізу:
![]()
За формулою 1.14 проводимо перевірку міцності прийнятого перерізу:
![]()
За формулою 1.15 перевіряємо жорсткість балки настилу:
![]()
Усі умови виконуються, таким чином для даної схеми приймаємо балки настилу з двотаврового профілю ý14.
За формулою 1.9 розраховуємо нормативне навантаження від балок настилу:
![]()
За формулами 1.6 та 1.8 визначаємо нормативні і розрахункові навантаження на допоміжну балку:
![]()
![]()
За формулами 1.10 та 1.11 визначаємо граничні значення згинального моменту та перерізуючої сили:
![]()
![]()
За формулою 1.12 визначаємо потрібний момент опору балки настилу:
![]()
З сортаменту фасонного прокату приймаємо двотаврову балку №30 з характеристиками:
;
;
;
.
За формулою 1.13 проводимо перевірку міцності прийнятого перерізу:
![]()
За формулою 1.14 проводимо перевірку міцності прийнятого перерізу:
![]()
За формулою 1.15 перевіряємо жорсткість балки настилу:
![]()
Усі умови виконуються, таким чином для даної схеми приймаємо допоміжні балки з двотаврового профілю ý30.
1.3 Порівняння варіантів схем балочної клітки
Розрахунок металоємності балочних кліток нормального та ускладненого типу виконуємо за формулами 13,14 (1):
; (1.16)
; (1.17)
де
- вага
настилу,
;
- відповідно, вага
балки настилу і допоміжної балки,
;
- відповідно кількість балок настилу і допоміжних балок.
Таким чином металоємність балочної клітки нормального типу складає:
![]()
Таким чином металоємність балочної клітки ускладненого типу складає:
![]()
Отримані дані з металоємності варіантів балочної клітки заносимо до таблиці.
Таблиця 1.1 – Порівняння варіантів схем балочної клітки
| №вар. | Витрати сталі, | Кількість | |||
| Всього | На | Відсотки, % | Типів балок | Монтажних елементів | |
| 1 | 3018 | 78,96 | 1 | 6 | |
| 2 | 2445 | 63,97 | 2 | 6 | |
Таким чином варіант балочної клітини нормального типу є менш металоємним та трудомістким. Схема балочної клітки нормального типу буде використана у подальшому розрахунку головних балок перекриття та колон.
2. РОЗРАХУНОК ГОЛОВНОЇ БАЛКИ
Визначаємо нормативні і розрахункові навантаження на головну балку:
![]()
![]()
За формулами 1.10 та 1.11 визначаємо граничні значення згинального моменту та перерізуючої сили:
![]()
![]()
За формулою 1.12 визначаємо потрібний момент опору балки настилу:
![]()
З сортаменту фасонного прокату приймаємо двотаврову балку №50Б2 з характеристиками:
;
;
;
.
За формулою 1.13 проводимо перевірку міцності прийнятого перерізу:
![]()
За формулою 1.14 проводимо перевірку міцності прийнятого перерізу:
![]()
За формулою 1.15 перевіряємо жорсткість балки настилу, але значення припустимого прогину приймаємо
:

Перевіряємо загальну стійкість головної балки перекриття за формулою:
, (2.1)
де
- крок балок настилу,
;
- ширина полки двотавра,
;
- товщина полки двотавра,
;
- вістова відстань між центрами полок двотавра.
Таким чином загальна стійкість головної балки перекриття складає:

Усі умови виконуються, таким чином приймаємо перетин головної балки з двотаврового профілю ý50Б2.
2.1 Розрахунок опорного ребра балки
Для даної схеми приймаємо конструкцію опорного ребра, розміщеного на краю головної балки. Ширину опорного ребра
приймаємо конструктивно рівною ширині полки двотавра
.
Товщину опорного ребра розраховуємо за формулою 71 (1):
, (2.2)
де
- опорна реакція головної балки,
;
- розрахунковий опір сталі за межею міцності,
.
Таким чином за формулою 2.2 товщина опорного ребра складає:
![]()
Конструктивно приймаємо товщину опорного ребра
.
Перевіряємо місцеву стійкість опорного ребра балки за формулою 72 (1):
, (2.3)
де
- ширина консольної частини полки балки,
.
Таким чином розрахункова місцева стійкість ребра балки складає:

Стійкість опорного ребра балки , як центрово стиснутого стержня перевіряємо за формулою 73 (1):
, (2.4)
де
- коефіцієнт повздовжнього вигину, що визначається в залежності від гнучкості
;
- площа опорної ділянки балки, яка включає переріз опорного ребра та частину заввишки
.
Площу опорної ділянки балки визначаємо за формулою 74 (1):
, (2.5)
![]()
Гнучкість опорної частини балки визначаємо за формулою 76 (1):
, (2.6)
де
- радіус інерції,
за формулою 77 (1):
, (2.7)
де
- момент інерції опорної ділянки відносно осі,
за формулою 78 (1):
(2.8)
Таким чином момент інерції опорної ділянки відносно осі стінки складає:
![]()
Таким чином радіус інерції перетину складає:
![]()
Таким чином гнучкість опорної частини балки складає:
![]()
За таблицею 21 додатку до (1) приймаємо коефіцієнт
.
За формулою 2.4 перевіряємо умову стійкості опорного ребра балки , як центрово стиснутого стержня:
![]()
Із умов міцності кутових за формулою 81 (1) знаходимо необхідний катет вертикального кутового шва:
, (2.9)
де
- розрахункова довжина швів,
.

Згідно табл.8 додатку до (1) приймаємо катет шва
.
2.2 Розрахунок спряження балок настилу з головною балкою
Розраховуємо монтажну висоту перекриття за формулою:
, (2.10)
де
- конструктивна висота перекриття за завданням,
;
- висота балок настилу,
;
- товщина настилу,
.
Таким чином монтажна висота перекриття складає:
![]()
Так як монтажна висота перекриття менше висоти головної балки, приймаємо схему з’єднання в одному рівні головної балки і балок настилу.
За формулою 82 (1) перевіряємо стінку прокатної балки настилу на місцеве зминання:
(2.11)
де
- опорна реакція балки настилу,
;
- площа зминання стінки прокатної балки,
.
Площу зминання стінки прокатної балки знаходимо за формулою 83 (1):
, (2.12) де
- товщина стінки прокатної балки,
;
- знаходимо згідно геометричних параметрів двотаврового профілю.
Таким чином площа зминання стінки прокатної балки складає:
![]()
За формулою 2.11 перевіряємо умови зминання стінки прокатної балки настилу:
![]()
За формулою 84 (1) перевіряємо ребро жорсткості головної балки на торцеве зминання:
(2.13)
де
- площа зминання торцевої поверхні ребра,
.
Площу зминання торцевої поверхні ребра знаходимо за формулою 85 (1):
, (2.14)
де
- товщина ш ширина ребра жорсткості головної балки,
.
Таким чином площа зминання торцевої поверхні ребра жорсткості складає:
![]()
За формулою 2.13 перевіряємо ребро жорсткості головної балки на торцеве зминання:
![]()
Визначаємо діаметр болта
(2.15)
(2.16)
![]()
![]()
Монтажні болти для кріплення балки настилу до головної балки приймаємо М16.
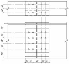
2.3 Розрахунок монтажного стику головної балки
Вибираємо конструктивно розташування монтажного стику посередині головної балки, тоді
;
.
Згідно рекомендацій (1) приймаємо схему розташування болтів монтажного стику головної балки, спосіб обробки – металевими щітками, контроль затягування болтів – за згинальним моментом.

Рисунок 2 – Схема компоновки болтів монтажного стику
Момент інерції у найбільш віддалених від вісі болтах розраховуємо за формулою 88 (1):
, (2.15)
де
- момент інерції стінки балки,
;
- момент інерції всього перерізу балки,
.
Таким чином момент інерції у найбільш віддалених від вісі болтах складає: ![]()
За формулою 89 (1) визначаємо зусилля в болтах, викликане моментом
:
, (2.16)
де
- відстань між крайніми рядами болтів за висотою,
;
- сума квадратів відстаней між симетричними рядами болтів,
;
- кількість рядів болтів.
Таким чином максимальне зусилля в болтах складає:
![]()
Так як поперечна сила у перетині
, сумарне зусилля
.
За формулою 92 (1) визначаємо необхідну площу перерізу високоміцного болта:
, (2.17)
де
- розрахунковий опір розтягу високоміцного болта;
- коефіцієнт умов з’єднання;
- кількість поверхонь тертя;
- коефіцієнт тертя та коефіцієнт надійності за табл.11д (1).
Таким чином необхідна площа перерізу високоміцного болта складає:
![]()
За табл.15д (1) вибираємо діаметр високоміцного болта М16 з
. Товщину накладок приймаємо конструктивно рівною
.
Зусилля в поясах балки розраховуємо за формулою 94 (1):
, (2.18)
де
- згинальний момент в полках балки,
;
- висота балки,
.
Таким чином зусилля в поясах головної балки складає:
![]()
За формулою 95 (1) розраховуємо несучу здатність одного високоміцного болта кріплення поличок:
(2.19)
![]()
Кількість болтів у з’єднанні визначаємо за формулою 96 (1):
(2.20)
(приймаємо 8 болтів М16)
Необхідну площу накладок розраховуємо за формулою 97 (1):
(2.21)
![]()
Необхідну товщину накладок розраховуємо за формулою 98 (1):
(2.22)
(приймаємо товщину
)
3. РОЗРАХУНОК ЦЕНТРОВО–СТИСНЕНИХ КОЛОН
Розрахункову висоту колони визначаємо за формулою 98 (1):
, (3.1)
де
- висотна позначка верха майданчика за завданням,
;
- величина заглиблення колони у підлогу.
Таким чином розрахункова висота колони складає:
![]()
Так як при наявності зв’язків між колонами в обох напрямках, вузол верхнього закріплення колони вважають шарнірним розрахункова висота колони
. Згідно рекомендацій (1) приймаємо гнучкість колони
, тоді коефіцієнт
.
Потрібний радіус інерції перерізу гілки колони розраховуємо за формулою: ![]()
Потрібну площу перерізу ланки колони визначаємо за формулою 102 (1):
, (3.3)
Таким чином потрібна площа перерізу колони складає:
![]()
З сортаменту фасонного прокату приймаємо швелер №14 з характеристиками:
;
. Таким чином фактична гнучкість колони буде складати: ![]()
Отримана гнучкість перевищує припустиме значення, тому з сортаменту фасонного прокату приймаємо швелер №18 з характеристиками:
;
. Таким чином фактична гнучкість колони буде складати:
(
)
Перевірку міцності прийнятого перерізу виконуємо за формулою:
(3.4)
![]()
Розрахунок необхідної гнучкості колони проводимо із умови рівностійкості перерізу колони (
) за формулою 120 (1):
, (3.5)
де
- гнучкість окремої гілки колони.
Таким чином гнучкість колони складає:
![]()
Необхідний радіус інерції відносно вісі Y визначаємо за формулою 121 (1):
![]()
Необхідну відстань між гілками колони знаходимо за формулою 123 (1):
(приймаємо
)
Мінімальна ширина наскрізної колони з умов (1) повинна складати:
![]()
Таким чином приймаємо ширину наскрізної колони
.
За формулою 124 (1) встановлюємо відстань між планками:
(3.6)
де
- гнучкість окремої гілки;
- радіус інерції гілки відносно нейтральної вісі,
.
За формулою 3.6 відстань між планками складає:
(приймаємо
)
За формулою 126 (1) визначаємо власний момент інерції перерізу колони:
, (3.7)
де
- відповідно, площа і власний момент інерції гілки відносно вісі Y.
Таким чином власний момент інерції перерізу колони складає:
![]()
Радіус інерції перерізу визначаємо за формулою 127 (1):
![]()
За формулою 128 (1) визначаємо гнучкість колони відносно вісі Y:
(
)
За формулою 129 (1) визначаємо приведену гнучкість колони:
![]()
За формулою 130 (1) перевіряємо стійкість відносно вісі Y:
(3.8)
Перевіряємо стійкість відносно вісі за формулою 3.8:
![]()
За формулою 131 (1) знаходимо ширину планок:
(приймаємо
)
Згідно умов формули 132 (1) та рекомендацій приймаємо товщину і ширину планок
;
.
За формулою 133 (1) перевіряємо відношення жорсткості планки і гілки:
, (3.9)
де
- момент інерції перерізу планки відносно власної вісі,
;
- відстань між осями планок,
;
- відстань між осями гілок,
.
Таким чином перевіряємо умови формули 3.9:
![]()
За формулою 135 (1) проводимо розрахунок планки на дію умовної поперечної сили:

За формулами 136 (1) проводимо розрахунок поперечної сили і згинального моменту в планках:
![]()
![]()
За формулою 137 (1) проводимо перевірку кутових швів що закріплюють планку до гілок колони:
(3.10)
3.1 Розрахунок оголовка колони
Товщину опорної плити
приймаємо конструктивно в межах 20…25мм. Болти виконують тільки фіксуючу роль і також назначаються конструктивно діаметром в межах
.
Із умови міцності на зминання визначаємо товщину ребра (формула 138 (1)):
, (3.11)
де
- довжина зминаємої площі.
Таким чином товщина опорного ребра складає:
(приймаємо
)
За формулою 140 (1) визначаємо необхідний катет шва:
(3.12) ![]()
Висоту ребра визначаємо із умови міцності зварних швів, які закріпляють їх до стінок колон (формула 139 (1)):
(3.13)
(приймаємо
)
Визначивши розміри ребра, необхідно перевірити його на зріз за формулою 139 (1):
(3.14)
![]()
3.2 Розрахунок бази колон
За формулою 143 (1) визначаємо необхідну площу опорної плити, виходячи із умови забезпечення міцності бетону фундаменту під плитою:
, (3.15)
де
– розрахунковий опір стисненню бетону фундаменту,
;
– коефіцієнт, який залежить від співвідношення площі верхнього обрізу фундаменту і площі опорної плити бази;
– розрахунковий тиск колони на фундамент, який враховує власну вагу колони, кН.
За формулою 144 (1) знаходимо розрахунковий тиск колони на фундамент
, (3.16)
– площа перерізу колони, м2;
– довжина колони;
– вага
перерізу колони за довідником;
- коефіцієнт надійності за навантаженням.
Таким чином розрахунковий тиск колони на фундамент складає:
![]()
Згідно формули 3.15 площа опорної плити колони складає:
![]()
За формулою 145 (1) встановлюємо ширину плити:
(3.17)
де
- товщина траверси, приймається в межах
;
– величина консольного звісу, приймається в межах
.
Таким чином ширина плити складає:
![]()
За формулою 146 (1) визначаємо необхідну довжину плити:
![]()
Згідно умов (1) довжину плити приймаємо
.
За формулою 147 (1) визначаємо напруження стиску опорної бази:
![]()
За формулами 148-150 (1) визначаємо найбільші згинальні моменти, що виникають у опорній плиті колони для смужки одиничної ширини
:
![]()
![]()
![]()
За найбільшим згинальним моментом знаходимо необхідну товщину плити за формулою 152 (1):
(приймаємо
)
За формулою 153 (1) визначаємо висоту траверси колони:
(приймаємо
)
За формулою 154 (1) навантаження на траверсу приймаємо рівномірно розподіленим:
![]()
За формулами 155-156 (1) найбільші значення згинального моменту в траверсі становить:
а) на консольних ділянках: ![]()
б) у прольоті:
![]()
За формулою 157 (1) найбільша поперечна сила на опорі складає:
![]()
За формулою 158 (1) проводимо перевірку міцності траверси на згин:
(3.18)
![]()
За формулою 159 (1) проводимо перевірку міцності траверси на зріз
(3.19)
![]()
ПЕРЕЛІК ПОСИЛАНЬ
1. Методичні вказівки до виконання курсової роботи "Робочий майданчик виробничих будівель" по курсу "Металеві конструкції" для студентів фаху 7.092101 "Промислове і цивільне будівництво"/Склад. В.В.Шкода. – Запоріжжя: ЗДІА, 1997-61 с.
2. Бадур А.И., Белогуров В.Д. Стальные конструкции. Справочник конструктора.-К.: Изд-во "Сталь", 2004.-120 с.
3. Справочник конструктора металлических контрукций/ Васильченко В.Т., Рутман А.Н., Лукьяненко Е.П.-Киев: Будівельник, 1890.-288 с.
4. Справочник техника-конструктора. Изд. 3-е, перераб. И доп. Самохвалов Я.А., левицкий М.Я., Григораш В.Д. Киев, "Техніка", 1978.-592 с.
