Проектный и проверочный расчет осей
В отличие от валов оси не работают на кручение и испытывают только деформацию изгиба.
Проектныйрасчет проводят в следующей последовательности:
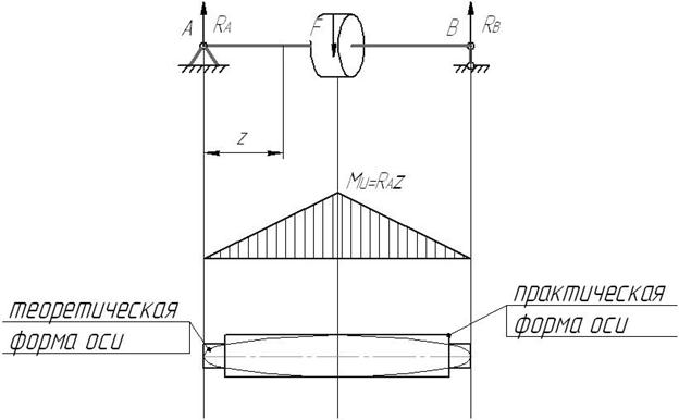
1) Составляют расчетную схему нагружения.
2) Определяют реакции и строят эпюру изгибающих моментов.
3) Из условия прочности оси в опасном сечении получают её теоретическую форму.
4) Теоретическую форму оси заменяют практической


Из условия прочности находим:
- наименьший диаметр оси.
Проверочныерасчеты осей проводятся по тем же зависимостям, что для валов. При этом учитывают, что напряжения кручения = 0.