В цилиндрической трубе
Основное уравнение равномерного движения
Равномерное движение возможно лишь в трубах постоянного сечения, так как при равномерном движении величина средней скорости и распределение скоростей по сечению должны оставаться неизменными по длине трубопровода.
Найдем выражение для равномерного движения жидкости в трубах, справедливое как для ламинарного, так и турбулентного режимов.
Пусть в наклонном трубопроводе имеем равномерное движение со средней скоростью
.
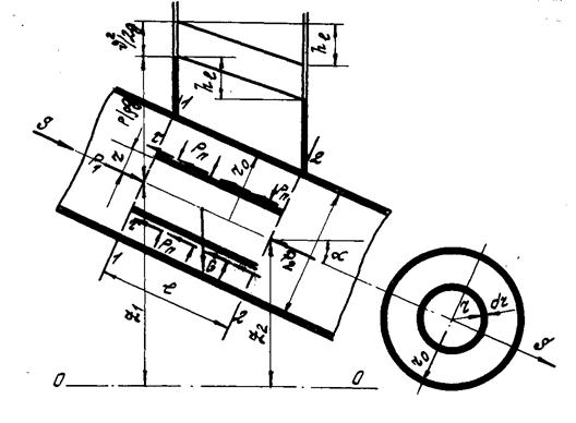
Сечениями 1-1 и 2-2 в трубопроводе выделим соосную цилиндрическую струйку радиусом
и длиной
(рис. 3).

Рис.3
Для выделенного отсека уравнение динамического равновесия относительно оси движения S-S можно записать в виде

где
–сумма проекций внешних сил на ось движения;
–сумма проекций сил сопротивления на ось движения.
Внешние силы:
1. Сила тяжести
проекция которой на ось равна:
, (5.7)
где 
2. Силы давления на торцевые поверхности отсека:
и
.
Сумма проекций этих сил на ось S-S будет
(5.8)
3. Силы давления на боковую поверхность направлены перпендикулярно к оси движения S-S, поэтому проекции этих сил будут равны нулю.
4. Суммарная сила сопротивления (трения) спроектируется на ось движения в натуральную величину и может быть выражена зависимостью
(5.9)
где
–сила сопротивления трения, приходящаяся на единицу боковой поверхности выделенного жидкого цилиндра (среднее касательное напряжение). Таким образом, с учетом выражений (5.7)–(5.9) уравнение динамического равновесия (5.6) можно представить в виде
. (5.10)
Разделив уравнение (10) на произведение
, получим
. (5.11)
Поскольку левая часть уравнения (11) представляет собой в случае равномерного движения потерю напора по длине
, можно это уравнение окончательно записать в виде
(5.12)
или
, (5.13)
где
–гидравлический или пьезометрический уклоны, так как при равномерном движении эти уклоны равны.
Уравнение (5.13) является основным уравнением равномерного движения жидкости в цилиндрической трубе.