Комбинированные конструктивные системы
Оболочковая система
Эта система отличается максимальной жесткостью среди рассмотренных в связи с тем, что несущие конструкции расположены по внешнему контуру. Поэтому она наиболее часто применяется при проектировании самых высоких зданий – свыше 200м. Оболочковая система присуща уникальным высотным зданиям жилого, административного (офисного) или многофункционального назначения.
В зависимости от архитектурного решения внешняя несущая оболочка может иметь призматическую, цилиндрическую, пирамидальную или другую форму).
Иногда оболочковая система мало отличима от оболочково-ствольной системы. Различие заключается в предусмотренном проектом распределении горизонтальной нагрузки: только на оболочку (ствол работает только на вертикальные нагрузки от перекрытия) либо на оболочку и ствол. В последнем варианте несколько утяжеляются конструкции перекрытия в связи с их включением в работу на горизонтальные воздействия. Большинство зданий все же построено по оболочково-ствольной системе. По основной оболочковой системе были построены, например, здания-близнецы WTC в Нью-Йорке.
· Несущая часть оболочкового здания (когда оболочка выполняет только несущую функцию) монолитную железобетонную оболочку с регулярно расположенными проемами, сборно-монолитную железобетонную решетку. Чаще всего в Европе последние годы выполняются оболочки монолитные из тяжелого бетона (перфорированная стена) с последующим утеплением и внешней облицовкой. В случае выполнения оболочки, совмещающей несущие и теплоизолирующие функции стены, конструкция выполняется из конструктивного легкого бетона.
· Индивидуальной специфической задачей проектирования оболочковых зданий стало решение конструкции несущей наружной оболочки, совмещающей несущие и ограждающие функции. В этом случае она представляет собой раскосную или безраскосную стальную многоярусную пространственную ферму. Вариативность таких ферм, в течение последних десятилетий прошедших внедрение, велика:
- пространственная бескаркасная многоэтажная и многопролетная решетка с частым шагом колонн и поэтажными ригелями-перемычками;
- пространственная решетчатая макроферма крупного модуля, раскосы которой охватывают 10-15 этажей, с редким шагом колонн;
- пространственная безраскосная решетка, жесткость которой повышает глухое заполнение диагонально расположенных проемов;
- решетки из диагональных стержней;
- решетки из диагональных и горизонтальных стержней;
- решетки из диагональных и ортогональных стержней.
При возрастании высоты здания свыше 200м жесткость рассмотренных конструктивных решений недостаточна и переходят к пространственным перекрестно-стержневым структурам с обязательными горизонтальными аутригерами-ростверками.
Также средством повышения жесткости оболочки может служить переход от оболочковой системы к оболочково-диафрагмовой конструкции («пучку в трубе»).
Конструкции высотных зданий непрерывно совершенствуются и становятся все более разнообразными. В последние десятилетия получают активное внедрение трубобетонные конструкции железобетонного каркаса. Их высокая несущая способность способствовала пересмотру сложившегося за последние 30лет подхода к назначению зданий выше 300м только оболочковой системы (например, 1998г две башни Петронас-Тауэр в Куала-Лумпуре высотой 452м).
Мах разм в плане зд. США иГермании отв. Треб. Естест. освещен
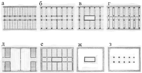
Наряду с основными конструктивными системами широко применяют комбинированные, в которых вертикальные несущие конструкции компонуют из различных элементов - стержневых и плоскостных, стержневых и ствольных и т. п. Наиболее распространенные комбинированные системы представлены на рис. 404.

Рис 404… Комбинированные конструктивные системы
а - с неполным каркасом; б - каркасно-диафрагмовая; в - каркасно-стволовая; г - каркасно-блочная; д - блочно-стеновая (блочно-панельная); е - ствольно-стеновая; ж - оболочково-стволовая; з - каркасно-оболочковая.
Найти картинку оболочково-диафрагмовой системы

Рис. Конструктивные схемы гражданских зданий
Система с неполным каркасом (каркасно-стеновая), основана на сочетании несущих стен и каркаса, воспринимающих все вертикальные и горизонтальные нагрузки. Здания каркасно-стеновой конструктивной системы рекомендуется проектировать с безригельным каркасом или с ригельным каркасом, имеющим нежесткие узлы соединения ригелей с колоннами.
Система применяется в двух вариантах: с несущими наружными стенами и внутренним каркасом либо с наружным каркасом и внутренними стенами. Первый вариант использовался при повышенных требованиях к свободе планировочных решений здания, второй - при целесообразности применения ненесущих легких конструкций наружных стен и при проектировании зданий средней и повышенной этажности.
Каркасно-диафрагмовая системаоснована на разделении статических функций между стеновыми (связевыми) и стержневыми элементами несущих конструкций. На стеновые элементы (вертикальные диафрагмы жесткости) передается всю или большую часть горизонтальных нагрузок и воздействий, на стержневые (каркас) - преимущественно вертикальные нагрузки. Система получила наиболее широкое применение в строительстве многоэтажных каркасно-панельных жилых домов в обычных условиях и в сейсмостойком строительстве.

Каркасно-ствольная система. В этом случае вместо диафрагм жесткости применяются пространственные элементы замкнутой формы в плане, называемые стволами. Работа данной системы основана на разделении статических функций между каркасом, воспринимающим вертикальные нагрузки, и стволом, воспринимающим горизонтальные нагрузки и воздействия. Каркасно-ствольная система может использоваться только в каркасных зданиях связевой и рамно-связевой конструктивных систем. Совместимость горизонтальных перемещений каркаса и ствола обеспечивают горизонтальные аутригеры-ростверки, расположенные через 18-20этажей.
Применяется при проектировании высотных жилых зданий до 60 этажей. Эта система позволяет получить силуэт здания, расширяющийся кверху (в виде опрокинутой пирамиды). В этом случае на верхних отметках здания (на стволе или отдельных опорах) сооружается мощная конструкция, как, например, система перекрестных ферм и балок с консолями, к которым подвешиваются на стержнях (работающих на растяжение) этажи, изготовленные на земле, или готовые блоки, поднятые на нужные отметки.
Пример пирамиды
Каркасно-блочная система основана на сочетании каркаса и объемных блоков, причем последние могут получать применение в системе в качестве ненесущих или несущих конструкций. Ненесущие объемные блоки используют для поэтажного заполнения несущей решетки каркаса. Несущие устанавливают друг на друга в три-пять ярусов на горизонтальных несущих платформах (перекрытиях) каркаса, расположенных с шагом в три-пять этажей. Система применялась в зданиях выше 12 этажей.
Каркасно-оболочковая системасочетает в себе наружную несущую оболочку здания с внутренним каркасом при работе оболочки на все виды нагрузок и воздействий, а каркаса - преимущественно на вертикальные нагрузки. Совместность горизонтальных перемещений оболочки и каркаса обеспечивается так же, как в зданиях оболочково-ствольной системы. Применяется при проектировании высотных зданий (свыше 200м).
Блочно-стеновая (блочно-панельная) система основана на сочетании несущих столбов из объемных блоков и несущих стен, поэтажно связанных друг с другом дисками перекрытий. Применялась в жилых зданиях высотой до 9 этажей в обычных грунтовых условиях.
Ствольно-стеновая система сочетает несущие стены и ствол с распределением вертикальных и горизонтальных нагрузок между этими элементами в различных соотношениях. Применялась при проектировании зданий выше 16 этажей.
Оболочковая - ствольная система («труба в трубе» и «труба в ферме» ) включает в себя наружную несущую оболочку и несущий ствол внутри здания, работающих совместно на восприятие вертикальных и горизонтальных нагрузок. Совместность перемещений ствола и оболочки обеспечивается горизонтальными несущими конструкциями отдельных ростверковых этажей, расположенных по высоте здания. Система применяется при проектировании высотных зданий. Большинство высотных зданий оболочкового типа построено именно по этой системе.
Оболочко - стеновая – сочетание внешней решетчатой оболочки и внутренних несущих стен. Внутреннее пространство здания перекрывает пространственная конструкция в виде тонкостенной оболочки, передающей нагрузки на наружные стены здания.
Оболочково-диафрагмовая («пучок труб»)– …
Наряду с основными и комбинированными системами в проектировании получают применение смешанные конструктивные системы, в которых сочетаются по высоте или протяженности здания двух или нескольких конструктивных систем. Такое решение обычно бывает продиктовано функциональными требованиями.
Например, если требовалось выполнить переход от бескаркасной системы в верхних типовых этажах к каркасной системе на первых этажах, т.е. при необходимости устройства мелкоячеистой планировочной структуры типовых этажей над зальной планировочной структурой в нетиповых. Чаще всего эта необходимость возникает при устройстве крупных магазинов в первых этажах жилых домов.
пример