Прямой пуск в ход синхронного двигателя.
Перечень аппаратуры:
| Обозначение | Наименование | Тип | Параметры |
| G1 | Трехфазный источник питания | 201.2 | 400 В ~; 16 А |
| G2 | Источник питания двигателя постоянного тока | 206.1 | 0...250В- 3 А (якорь) 200 В -; 1 А (возбуждение) |
| G3 | Возбудитель машины переменного тока | 209.2 | 0...40 В-;3,5 А |
| Ml | Машина постоянного тока | 101.1 | 90 Вт; 220 В 0,56 А (якорь); 220 В (возбуждение) |
| А1 | Трёхфазная трансформаторная группа | 347.1 | 3x80 В·А; 230 В/240,230, 220, 133, 127 В |
| А2,АЗ | Трехполюсный выключатель | 400 В ~; 10 А | |
| А4 | Реостат для цепи ротора машины переменного тока | 307.1 | 3x0…40 Ом; 1 А |
| P1 | Указатель частоты вращения | 506.2 | -2000…0…2000 мин-1 |

Описание электрической схемы соединений:
Обмотка ротора машины переменного тока, используемой как синхронный двигатель Ml, через гнезда "Fl", "F3" присоединена к выходу возбудителя G3, вход питания которого присоединен с помощью электрического шнура к розетке "220В~" трехфазного источника G1. Гнезда "Fl", "F2", "F3" этой же обмотки присоединены через выключатель A3 к реостату А4.
Фазы статорной обмотки двигателя Ml через выключатель А2 и трёхфазную трансформаторную группу А1, включенную по схеме
с напряжениями 230 / 400 В, присоединены к выходу трехфазного источника G1.
Частоту вращения двигателя можно контролировать с помощью указателя Р1, соединенного с выходом преобразователя угловых перемещений G2.
Указания по проведению эксперимента:
· Убедитесь, что устройства, используемые в эксперименте, отключены от сети электропитания.
· Соберите электрическую схему соединений тепловой защиты машины переменного тока (приложение 1).
· Соедините гнезда защитного заземления "
" устройств, используемых в эксперименте, с гнездом "РЕ" источника G1.
· Соедините аппаратуру в соответствии с электрической схемой соединений.
· Переключатели режима работы возбудителя G3, выключателей А2 и A3 установите в положение "РУЧН.".
· Регулировочную рукоятку возбудителя G3 поверните против часовой стрелки до упора.
· Установите сопротивление фаз реостата А4 8 Ом.
· Установите переключателем в блоке А1 номинальные напряжения: вторичной обмотки трансформаторов- 133 В.
· Включите источник G1.О наличии напряжений фаз на его выходе должны сигнализировать светящиеся лампочки.
· Включите выключатели "СЕТЬ" возбудителя G3, выключателей А2 и A3.
· Включите выключатель A3 нажатием кнопки "ВКЛ.".
· Подключите двигатель Ml к сети нажатием кнопки "ВКЛ." выключателя А2.
· Нажмите кнопку "ВКЛ."возбудителя G3и, вращая его регулировочную рукоятку, установите ток возбуждения двигателя Ml, достаточный для перехода его из асинхронного в синхронный режим работы с сетью. Об этом должно свидетельствовать постоянство этого тока возбуждения.
· Отключите выключатель A3 нажатием на кнопку "ОТКЛ.".
· По завершении эксперимента нажмите кнопку "ОТКЛ." выключателя А2, поверните регулировочную рукоятку возбудителя G3 против часовой стрелки до упора, отключите выключатели "СЕТЬ" возбудителя G3, выключателей А2 и A3, отключите источник G1 нажатием на кнопку-гриб с последующим отключением ключа-выключателя.
2.2 Определение угловых характеристик P=f(
),Q=f(
),U=f(
) синхронного двигателя:
Перечень аппаратуры:
| Обозначение | Наименование | Тип | Параметры |
| G1 | Трехфазный источник питания | 201.2 | 400 В ~; 16 А |
| G2 | Источник питания двигатля постоянного тока | 206.1 | 0...250В- 3 А (якорь) 200 В -;1 А (возбуждение) |
| G3 | Возбудитель машины переменного тока | 209.2 | 0...40В-;3,5 А |
| G4 | Машина постоянного тока | 101.1 | 90 Вт; 220 В 0,56 А (якорь); 220 В (возбуждение) |
| G5 | Преобразователь углвых перемещений | 6 выходных сигналов | |
| Ml | Машина переменного тока | 102.1 | 50 Вт; 230 В ~; 1500 мин-1 |
| А1 | Трёхфазная трансформаторная группа | 347.1 | 3x80 В·А; 230 В/240,230, 220, 133, 127 В |
| А2,АЗ | Трехполюсный выключатель | 400 В~;10 А | |
| А4 | Реостат для цепи ротора машины переменного тока | 307.1 | 3x0...40 Ом; 1 А |
| А5 | Активная нагрузка | 306.1 | 3x0...50 Вт; 220 В; 0,5 А |
| Р1 | Указатель частоты вращения | 506.2 | -2000…0…2000 мин-1 |
| Р2 | Измеритель мощностей | 507.2 | 0...600 ВА; 600 В |
| Р3.1 | Мультиметр | 509.2 | 0...1000 В ;
0...10 А
|
| Р4 | Фазометр | -180°...0...180° |

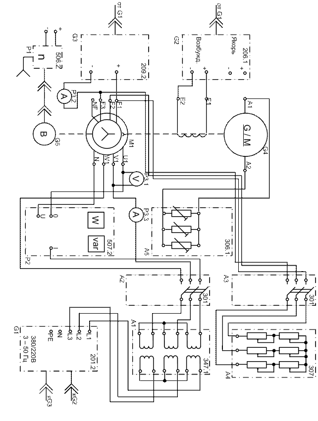
Описание электрической схемы соединений:
Обмотка ротора машины переменного тока, используемой как синхронный двигатель Ml, через гнезда "Fl", "F3" присоединена к выходу возбудителя G3, вход питания которого присоединен с помощью электрического шнура к розетке "220 В ~" трехфазного источника G1. Гнезда "Fl", "F2", "F3" этой же обмотки присоединены через выключатель A3 к реостату А4.
Фазы статорной обмотки двигателя Ml через выключатель А2 и трёхфазную трансформаторную группу А1, включенную по схеме
с напряжениями 230 / 400 В, присоединены к выходу трехфазного источника G1.
Обмотка возбуждения машины постоянного тока, используемой как нагрузочный генератор G4, присоединена к нерегулируемому выходу "ВОЗБУЖДЕНИЕ" источника G2. Якорная цепь генератора G4 присоединена к нагрузке А5. Вход питания источника G2 присоединен с помощью электрического шнура к розетке "380 В ~" трехфазного источника G1.
Частоту вращения двигателя Ml можно контролировать с помощью указателя Р1, соединенного с выходом преобразователя угловых перемещений G5.
Активную Р и реактивную Q мощности двигателя Ml можно измерять с помощью измерителя мощностей Р2.
Междуфазное напряжение U двигателя Ml можно измерять вольтметром Р3.1.
Фазовый угол
сдвига ЭДС двигателя Ml и напряжения сети (угол нагрузки двигателя) можно измерять с помощью фазометра Р4, связанного через указатель частоты вращения с датчиком угловых перемещений G5 и выходом источника G1 (сетью).
Указания по проведению эксперимента:
· Осуществите прямой пуск в ход синхронного двигателя Ml в соответствии с указаниями по проведению эксперимента 3.1.
· Включите выключатель "СЕТЬ" фазометра Р4.
· Регулировочную рукоятку источника G2 поверните против часовой стрелки до упора.
· Регулировочные рукоятки нагрузки А5 установите в положение "О".
· Включите выключатель "СЕТЬ" и нажмите кнопку "ВКЛ." источника G2.
· Перемещая регулировочные рукоятки нагрузки А5, изменяйте угол
нагрузки и записывайте показания фазометра Р4, ваттметра и варметра измерителя Р2 мощностей и вольтметра РЗ. 1 в таблицу 3.1.
Таблица 3.1
, град
| ||||||||||
| Р, Вт | ||||||||||
| Q, ВАр | ||||||||||
| U, В |
· В случае перехода двигателя Mlв асинхронный режим работы разгружайте его по активной мощности, вращая регулировочные рукоятки нагрузки А5 против часовой стрелки до тех пор, пока не восстановится синхронная работа двигателя с сетью. По завершении эксперимента вращая регулировочные рукоятки нагрузки А5, разгрузите двигатель Ml по активной мощности, нажмите кнопку "ОТКЛ." Источника G2 и выключателя А2. Затем поверните регулировочную рукоятку возбудителя G3 против часовой стрелки до упора, отключите выключатели "СЕТЬ" источника G2, возбудителя G3, выключателей А2 и A3, фазометра Р4, отключите источник G1 нажатием на кнопку-гриб и последующим отключением ключа-выключателя. Постройте угловые характеристики P = f(
), Q = f(
), U = f (
).
2.3 Определение U-образной характеристики I=f(If) синхронного двигателя.
Перечень аппаратуры:
| Обозначение | Наименование | Тип | Параметры |
| G1 | Трехфазный источник питания | 201.2 | 400 В ~; 16 А |
| G2 | Источник питания двигатля постоянного тока | 206.1 | 0...250В- 3 А (якорь) 200 В -; 1 А (возбуждение) |
| G3 | Возбудитель машины переменного тока | 209.2 | 0...40В-;3,5 А |
| G4 | Машина постоянного тока | 101.1 | 90 Вт; 220 В 0,56 А (якорь); 220 В (возбуждение) |
| G5 | Преобразователь угловых перемещений | 6 выходных сигналов | |
| Ml | Машина переменного тока | 102.1 | 50 Вт; 230 В ~; 1500 мин-1 |
| А1 | Трёхфазная трансформаторная группа | 347.1 | 3x80 В·А; 230 В/240,230, 220, 133, 127 В |
| А2,АЗ | Трехполюсный выключатель | 400 В~; 10 А | |
| А4 | Реостат для цепи ротора машины переменного тока | 307.1 | 3x0...40 Ом; 1 А |
| А5 | Активная нагрузка | 306.1 | 3x0...50 Вт; 220 В; 0,5 А |
| Р1 | Указатель частоты вращения | 506.2 | -2000…0…2000 мин-1 |
| Р2 | Измеритель мощностей | 507.2 | 0...600 ВА; 600 В |
| Р3.1...РЗ.З | Мультиметр | 509.2 | 0...1000 В ;
0...10 А
|
Описание электрической схемы соединений:
Обмотка ротора машины переменного тока, используемой как синхронный двигатель Ml, через гнезда "FI", "F3" присоединена к выходу возбудителя G3, вход питания которого присоединен с помощью электрического шнура к розетке "220 В ~" трехфазного источника G1. Гнезда "Fl", "F2", "F3" этой же обмотки присоединены через выключатель A3 к реостату А4.
Фазы статорной обмотки двигателя Ml через выключатель А2 и трёхфазную трансформаторную группу А1 включенную по схеме
с напряжениями 230 / 400 В, присоединены к выходу трехфазного источника G1.
Обмотка возбуждения машины постоянного тока, используемой как нагрузочный генератор G4, присоединена к нерегулируемому выходу "ВОЗБУЖДЕНИЕ" источника G2. Якорная цепь генератора G4 присоединена к нагрузке А5. Вход питания источника G2 присоединен с помощью электрического шнура к розетке "380 В ~" трехфазного источника G1.
Частоту вращения двигателя Ml можно контролировать с помощью указателя Р1, соединенного с выходом преобразователя угловых перемещений G5.
Активную и реактивную мощности двигателя Ml можно контролировать с помощью измерителя мощностей Р2.
Междуфазное напряжение двигателя Ml можно контролировать вольтметром Р3.1.
Ток возбуждения If и ток статорной обмотки I двигателя Ml можно измерять соответственно амперметрами Р3.2 и РЗ.З.
Указания по проведению эксперимента:
· Осуществите прямой пуск в ход синхронного двигателя Ml в соответствии с указаниями по проведению эксперимента 3.1.
· Регулировочную рукоятку источника G2 поверните против часовой стрелки до упора.
· Регулировочные рукоятки нагрузки А5 установите в положение "0".
· Включите выключатель "СЕТЬ" и нажмите кнопку "ВКЛ." источника G2.
· Вращая регулировочные рукоятки нагрузки А5, установите активную мощность Р, потребляемую двигателем Ml из сети, например, 50 Вт и поддерживайте её в ходе эксперимента.
· Вращая регулировочную рукоятку возбудителя G3, изменяйте ток возбуждения If двигателя Ml и записывайте показания амперметров Р3.2 и РЗ.З в таблицу 3.2.
Таблица 3.2
| If, A | ||||||||||
| I, А |
· По завершении эксперимента, вращая регулировочные рукоятки нагрузки А5, разгрузите двигатель Ml по активной мощности, нажмите кнопку "ОТКЛ." источникении эксперимента, вращая регулировочные рукоятки нагрузки А5, разгрузите двигатель Ml по активной мощности, нажмите кнопку "ОТКЛ." источника G2 и выключателя А2. Затем поверните регулировочную рукоятку возбудителя G3 против часовой стрелки до упора, отключите выключатели "СЕТЬ" источника G2, возбудителя G3, выключателей А2 и A3, отключите источник G1 нажатием на кнопку-гриб и последующим отключением ключа-выключателя. Постройте U-образную характеристику I = f (If).
Контрольные вопросы.
1. Объясните принцип работы синхронного двигателя?
2. Какие существуют способы пуска синхронных двигателей?
3. С какой целью при асинхронном пуске синхронного двигателя обмотку возбуждения замыкают на активное сопротивление?
4. Почему при регулировке тока возбуждения меняется величина тока статора синхронного двигателя?
5. При каких условиях синхронный двигатель работает с отстающим током статора, а при каких с опережающим?
6. Что такое выпадение синхронного двигателя из синхронизма и при каких условиях оно происходит?
Приложение 1
Электрическая схема соединений тепловой защиты машины
переменного тока

Перечень аппаратуры
| Обозначение | Наименование | Тип | Параметры |
| А1 | Машина переменного тока | 102.1 | 50 Вт, 220 В, 1500мин-1 |
| G1 | Трехфазный источник питания | 201.2 | 400 В~,16 А |
;
0...10 А