Виконання дверних прорізів
Дверні прорізи усередині квартир мають ширину 800 мм та 600 мм, вхідні двері у квартири шириною 900 мм у будинок, з урахуванням тамбуру, – 1200 мм, рис. 1. Один проріз знаходяться у зовнішній стіні товщиною 510 мм та п’ять - у внутрішніх стінах товщиною 380 мм, які слід розміщувати у шарі 0 файлу креслення. Чотирнадцять - у перегородках товщиною 100 мм, які слід розміщувати у шарі Перегородки.
Послідовність виконання дверного прорізу у перегородці.
6.1. Зробіть поточним шар Перегородки.
6.2. Вставте динамічний блок дверного прорізу з електронної бібліотеки, додаток А, у файл креслення. Для цього відкрийте: вікно Центру Проектування (DesignCenter), папку “Будівельні конструкції. Умовні зображення”, файл “Двері, ворота за ДСТУ Б А.2.4-7-2009 (дблоки).dwg”, блоки, рис. 6.1, і перетягніть динамічний блок “Двері однополотні” на робоче поле.

Рис. 6.1
6.3. Зменшить його зображення у 100 разів за допомогою команди Масштаб з панелі Редактирование. Якщо зображення дверного прорізу опиниться за межами формату креслення, то перенесіть його за допомогою однойменної команди ближче до плану будинку.
6.4. Установіть товщину дверного прорізу рівну товщині перегородки. Для цього оберіть прицілом будь-який елемент дверного прорізу, рис. 6.2. Включіть значок
. Він стане червоним і з’явиться список значень товщини. Оберіть 100 мм.
6.5. Установіть ширину дверного прорізу 800 мм. Для цього включіть значок
, рис. 6.2, і з клавіатури введіть 8, ширину прорізу.
6.6. За необхідністю можна змінювати напрям відкриття дверей, включаючи значки
, рис. 6.3.
Рис. 6.2
|
Рис. 6.3
|
6.7. Оберніть блок за допомогою команди Повернуть з панелі Редактирование на кут 90° проти годинникової стрілки.
6.8. Вставте один блок у міжкімнатну перегородку на відстані 500 мм від внутрішньої стіни. Для цього оберіть команду Копировать с Базовой точкой в точці 1, рис. 25. Натисніть [Shift] (або [Ctrl]) і, не відпускаючи її, натисніть праву кнопку миші для виклику контекстного меню прив'язки об'єкту. Оберіть прив’язку
. На запит у командному рядку Базовая точка: оберіть за допомогою прив’язки Конточка точку 2, рис. 6.4. Вкажіть напрям вставки дверного прорізу (вверх уздовж перегородки) та при появі запиту <Смещение> з клавіатури введіть значення 5.
Рис. 6.4
|
6.9. Обріжте зайві частки лінії перегородки, що накладаються на лінії дверного прорізу, за допомогою команди Обрезать з панелі Редактирование, рис. 6.5. На запит у командному рядку Выберите объекты: натисніть по черзі на бокові лінії дверного прорізу. Об’єкт обрізки оберіть за допомогою січної рамки.
Рис. 6.5
|
Послідовність виконання дверних прорізів у стінах різної товщини.
6.10. Зробіть поточним шар 0.
6.11. Аналогічно вставте одні двополотні вхідні до будинку двері шириною 1200 мм у зовнішню стіну товщиною 510 мм по осі В на відстані 710 мм від стіни по осі 2 рис. 6.6. Використайте блок “Двері двополотні”.
6.12. Аналогічно вставте три однополотні вхідні до квартир двері шириною 900 мм у внутрішні стіни товщиною 380 мм по осям Б, 2, 3. Відстані від стін задано на рис. 6.7.
Рис. 6.6
|
Рис. 6.7
|
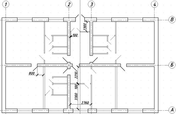
6.13. Аналогічно вставте одні однополотні двері шириною 800 мм у внутрішню стіну товщиною 380 мм по осі Б між осями 1 - 2 ліворуч перегородки на відстані 800 мм, рис. 6.8.
Послідовність виконання дверних прорізів у перегородках.
6.14. Зробіть поточним шар Перегородки.
6.15. Аналогічно вставте одні двополотні двері шириною 1200 мм у перегородку тамбуру праворуч стіни по осі 2 на відстані 100 мм, рис. 6.8.
6.16. Аналогічно вставте одні однополотні двері шириною 800 мм у перегородку між коридором та кухнею між осями Б - В та 1 - 2, рис. 6.8.
6.17. Аналогічно вставте дві однополотні двері шириною 600 мм біля кухні у перегородки між коридором і ванною та туалетом, рис. 6.8.
6.18. Аналогічно вставте дві однополотні двері шириною 800 мм у міжкімнатні перегородки між осями А - Б та 2 - 3, рис. 6.8.

Рис. 6.8
6.19. Дзеркально відобразіть перегородки з дверними прорізами між кухнею, ванною та туалетною кімнатами верхньої половини плану у нижню відносно Оси отражения, що співпадає з віссю Б, за допомогою команди Зеркало з панелі Редактирование, рис. 6.8.
6.20. Аналогічно відобразіть необхідні перегородки з дверними прорізами з лівої половини плану у праву відносно Оси отражения, що співпадає з вертикальною лінією, розташованою посередині між осями 2 – 3, рис. 6.8.
Рис. 6.2
Рис. 6.3
Рис. 6.4
Рис. 6.5
Рис. 6.6
Рис. 6.7