Архітектура” за темою

МЕТОДИЧНІ ВКАЗІВКИ

до лабораторних занять та самостійної роботи студентів напрямів підготовки 6.060101 “Будівництво” та

Архітектура” за темою

“Виконання архітектурно-будівельного креслення плану

житлового будинку у AutoCAD”

 

 

 

Дніпропетровськ

Методичні вказівки до лабораторних занять та самостійної роботи студентів напрямів підготовки 6.060101 “Будівництво” та 6.060102 “Архітектура” за темою “Виконання архітектурно-будівельного креслення плану житлового будинку у AutoCAD” / Укладачі: Недодатко С. О,

Середа С. Ю. – Дніпропетровськ: ДВНЗ ПДАБА, - 2012. - 43 с.

 

Призначені для викладання спеціального блоку інженерної комп’ютерної графіки студентам денної, заочної, у т. ч. дистанційної, форм навчання напрямів підготовки будівництво, архітектура.

Для виконання креслення треба мати певний рівень знань з інженерної графіки [1, 2, 5 - 8] та AutoCAD [3, 4, 9, 10].

Вказівки надають практичні знання, вміння та навички для створення креслень за спеціальністю. Містять один з можливих шляхів виконання плану житлового будинку, оптимальний на думку укладачів. А також необхідні дані про стандартні [5, 6, 7] правила оформлення креслень, умовні позначення будівельних конструкцій та елементів, їх електронну бібліотеку. Остання призначена для підвищення рівня автоматизації та якості графічної роботи.

 

Укладачі: Недодатко С. О., кандидат технічних наук, доцент кафедри

нарисної геометрії та графіки ДВНЗ ПДАБА,

Середа С. Ю, асистент кафедри нарисної геометрії та графіки

ДВНЗ ПДАБА.

 

Відповідальний за випуск: Ткач Д. І., кандидат технічних наук, професор,

зав. кафедри нарисної геометрії та графіки ДВНЗ ПДАБА.

 

Рецензент: Малий А.Д., кандидат технічних наук, доцент кафедри

графіки Дніпропетровського національного університету

залізничного транспорту ім. академіка В. Лазаряна.

 

Затверджено на засіданні кафедри нарисної геометрії та графіки

ДВНЗ ПДАБА.

Протокол № 1 від 03.09.2012 р.

Зав. кафедри Ткач Д. І.

 

Затверджено на засіданні

Президії методичної ради

ДВНЗ ПДАБА.

Протокол № 5 (86) від 27.02.2013 р.

 

 

Зміст

Стор.

Вступ….....…………………........……………………………………….... 1. Створення нового файлу для архітектурно - будівельного креслення плану житлового будинку........................................................ 2. Компоновка креслення та виконання сітки координаційних осей................................................................................................................ 2.1. Послідовність виконання сітки координаційних осей................. 2.2. Послідовність установки відстаней між осями сітки................... 2.3. Послідовність видалення зайвих осей та установка необхідних відстаней.................................................................................................. 2.4. Розташування сітки у центрі креслення………………………… 3. Прив’язка і креслення стін на плані будинку....................................... 3.1. Прив'язка стін до координаційних осей........................................ 3.2. Креслення стін................................................................................. 4. Креслення перегородок.......................................................................... 5. Виконання віконних прорізів................................................................. 6. Виконання дверних прорізів.……………………………………......... 7. Виконання сходової клітки……………………………………............ 8. Зображення санітарно-технічних пристроїв......................................... 9. Зображення побутового обладнання.………........................................ 10. Зображення вентиляційних каналів.......……….................................. 11. Нанесення розмірів.......................................................…………….... 12. Нанесення написів і відміток.................…………………………….. 13. Визначення і нанесення площ приміщень на плані...................…… 14. Оформлення креслення будинку…………………………………..... Список рекомендованої літератури ........................…………….............. Додаток А. Електронна бібліотека AutoCAD основних умовних графічних зображень будівельних конструкцій системи проектної документації для будівництва.................................................................... Додаток Б. Електронна бібліотека AutoCAD основних умовних графічних зображень елементів санітарно-технічних систем за ДСТУ Б А.2.4-8-2009..............................................................................................                  

Вступ

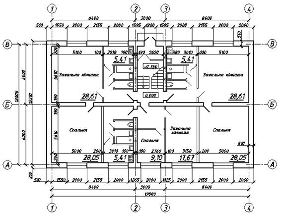
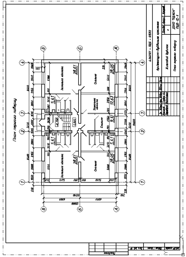
Пропоновані методичні вказівки розроблені для того, щоб допомогти студентам у виконанні креслення архітектурно-будівельного плану житлового будинку у системі AutoCAD, рис. 1.

Рис. 1

У тексті методичних вказівок є наступні умовності:

• (...) – у круглих дужках за необхідністю дається переклад російською мовою команд, їх опцій тощо, якщо в AutoCAD вони висвітлюються англійською, і навпаки;

• [Enter], [Ctrl] – у квадратних дужках наведено назви клавіш клавіатури, наприклад, Enter, Control. Якщо необхідна комбінація клавіш, то [Ctrl]+[S]. Це означає, що спочатку треба натиснути першу клавішу і, утримуючи її, другу;

• {ОК}, {Отмена} – у фігурних дужках наведено назви кнопок різноманітних вікон: основного, меню, діалогових, команд тощо;

• <…> - у кутових дужках наведено інформацію “за замовчанням”, наприклад, числові дані тощо;

• → - послідовний вибір операцій, команд, опцій, інших даних;

• стрілка миші – вістря стрілки-вказівки миші;

• включити (виключити) те, що необхідно – на екрані навести стрілку миші на те, що необхідно і натиснути ліву кнопку миші;

• перетягнути - на екрані навести стрілку миші на необхідний елемент, натиснути ліву кнопку і, не відпускаючи її, мишею показати для нього нове місце (аналогічно роботі зі смугою прокрутки);

• вибір прицілом – у графічному вікні за допомогою миші навести приціл на необхідний об’єкт і натиснути ліву кнопку миші;

• вибір точки – у графічному вікні за допомогою миші навести графічний курсор на необхідну точку і натиснути ліву кнопку миші

 

1. Створення нового файлу для архітектурно - будівельного креслення плану житлового будинку

Відкрийте AutoCAD та створіть новий файл для архітектурно - будівельного креслення плану житлового будинку командою Создать. Оберіть у вікні Выбор шаблона потрібний шаблон “СПДБ.А3. Горизонтальний.dwt ”, рис. 1.1. Відкриється новий файл “Чертеж*.dwg”, зовнішня та внутрішня частини якого будуть відповідати вимогам Системи проектної документації для будівництва (СПДБ). Це аркуш формату А3 з розмірами 420х297 мм, розташований горизонтально, рис. 1.2.

Збережіть файл на локальному диску D: комп’ютера, за яким Ви працюєте, у певній папці під власним іменем за допомогою команди Сохранить как…. Ім’я повинне складатися з: номеру групи, Вашого прізвища та порядкового номера файлу - 2. Наприклад, D:/Нарисна геометрія/ПЦБ-12-1_Сердюк_2.dwg.

Зробіть шар Основная надпись поточним та заповніть основний напис креслення як показано на рис. 1.2. Позначення “6.060101 – ПЦБ – 01592” складається з: 6.060101 – напрям підготовки “Будівництво”, ПЦБ – найменування спеціальності, 01592 – номер індивідуального плану.

Підготовка файлу до креслення плану складається з наступного.

Рис. 1.1

По-перше, у статусному рядку включіть кнопки Шаговая привязка, Отображение сетки, Режим Орто, Объектная привязка, Динамический ввод, рис. 1.3.

Рис. 1.2
Рис. 1.3

По-друге, встановіть крок прив’язки по осям x та y 10 мм. Для цього у статусному рядку натисніть правою кнопкою миші Шаговая привязка та оберіть опцію Настройка з контекстного меню. Відкриється вікно Режимы рисования, рис. 1.4, де треба встановити крок прив’язки, включити 2D пространство модели, відключити Показать сетку за лимитами.

По-третє, підготуйте шари файлу креслення. Відкрийте вікно Диспетчер свойств слоев, рис. 1.5, команди Свойства слоя на панелі Слои вкладки Главная. Файл креслення має наступні шари: 0, Defpoints, Оборудование, Оси, Основная надпись, Размеры тощо.

Рис. 1.4
Рис. 1.5

Шар з ім’ям 0 не можна видаляти і перейменовувати. Кожен з шарів має певні властивості: Статус, Имя, Включено, Заморожено, Блокировано, Стиль печати, Печать, Пояснение та властивості об’єктів AutoCAD, розташованих на них: Цвет, Тип линий, Вес линий.

Для побудови стін, вікон, вхідних дверей у будинок і квартири скористайтеся шаром 0. Сходи, вентиляційні канали будуйте у шарі Оборудование. Сітку координаційних осей - у шарі Оси. Розміри нанесіть у шарі Размеры, найменування приміщень напишіть у шарі Текст.

Створіть новий шар Перегородки для побудови перегородок та міжкімнатних дверей. Для цього натисніть кнопку Создать слой , рис. 1.5. Установіть властивості об’єктів шару Перегородки у відповідності до таблиці 1.1.

Таблиця 1.1 Властивості об’єктю Настройка з контекстного меню. Відкриється вікно Режимы рисования, рис. 1.4, де треба встановити крок прив’язки, включити 2D пространство модели, відключити Показать сетку за лимитами.

По-третє, підготуйте шари файлу креслення. Відкрийте вікно Диспетчер свойств слоев, рис. 1.5, команди Свойства слоя на панелі Слои вкладки Главная. Файл креслення має наступні шари: 0, Defpoints, Оборудование, Оси, Основная надпись, Размеры тощо.

Рис. 1.4
Рис. 1.5

Шар з ім’ям 0 не можна видаляти і перейменовувати. Кожен з шарів має певні властивості: Статус, Имя, Включено, Заморожено, Блокировано, Стиль печати, Печать, Пояснение та властивості об’єктів AutoCAD, розташованих на них: Цвет, Тип линий, Вес линий.

Для побудови стін, вікон, вхідних дверей у будинок і квартири скористайтеся шаром 0. Сходи, вентиляційні канали будуйте у шарі Оборудование. Сітку координаційних осей - у шарі Оси. Розміри нанесіть у шарі Размеры, найменування приміщень напишіть у шарі Текст.

Створіть новий шар Перегородки для побудови перегородок та міжкімнатних дверей. Для цього натисніть кнопку Создать слой , рис. 1.5. Установіть властивості об’єктів шару Перегородки у відповідності до таблиці 1.1.

Таблиця 1.1 Властивості об’єктів шару Перегородки  
Имя Цвет Тип линий Вес линий
Перегородки Фиолетовый Continuous 0,2 мм