Статический расчет ковшового водосброса.
Устойчивость ковшового водосброса определяется устойчивостью его отдельных элементов. Опыт эксплуатации показывает, что наиболее уязвимым элементом в оценке его устойчивости является ковш, а именно устойчивость его на всплытие. Коэффициент устойчивости определяется из условия:
(4.25)
Где
- сумма всех вертикально действующих (удерживающих) сил;
- сумма всех вертикально действующих (опрокидывающих) сил.
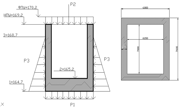
К удерживающим силам относят: Р1 – собственный вес ковша; Р2 – вес сороудерживающей решетки, служебного оборудования и затвора; Р3 - удерживающая сила от трения грунта о стенки ковша.
(4.26)
Собственный вес ковша определится:
(4.27)
Где Рц и Рф – собственно вес полого ковша и фундаментной плиты.
Для выполнения расчета составим расчетную схему:

Рисунок.4.2.Схема ковша к статическому расчету ковшового водосброса.
(4.28)
(4.29)
По формуле : 
Вес сороудерживающей решётки и вспомогательного оборудования принимаем 30% от собственного веса ковша:
(4.30)
Сила трения грунта о стенки ковша определяется величиной действующего активного давления влажного грунта:
(4.31)
Где К – коэффициент трения влажного грунта о стенки ковша, выполненные из бетона, К=0,4; l – периметр ковша по наружной стороне, l = 16,4м; Еа - активное давление грунта:
(4.32)
Где h – мощность грунт за стенками ковша,
; φ – угол внутреннего трения влажного грунта за стенками ковша φ=37ᵒ; γнас – объемная масо грунта за стенками ковша, n – относительная пористость грунта тела плотины, n=0,36.
γнас=(1-n)∙(γг – γв)=(1 -0,36)∙(26,7-10)=10,68 kH/м2;
Из формулы (4.32) получим:

Тогда по формуле (4.31) :

К опрокидывающим силам относится действие взвешивающего давления
(4.33)
Где Sосн – площадь основания ковша, Sосн=7,6*6,8=51,68м2;
- отметка низа фундаментной плиты ковша.
По формуле коэффициент устойчивости

Полученное значение коэффициента устойчивости больше допустимого
, следовательно ковш будет устойчив к всплытию.