Введение
МИНИСТЕРСТВО СЕЛЬСКОГО ХОЗЯЙСТВА РФ
ФГОУ ВПО «Курганская государственная сельскохозяйственная академия имени Т.С.Мальцева»
Кафедра архитектуры и графики
ИНЖЕНЕРНАЯ ГРАФИКА
МЕТОДИЧЕСКИЕ УКАЗАНИЯ И КОНТРОЛЬНЫЕ ЗАДАНИЯ
ДЛЯ СТУДЕНТОВ-ЗАОЧНИКОВ

КГСХА – 2011
Введение
Контрольная работа по инженерной графике состоит из 7-9 листов (количество и номера листов для разных специальностей указаны в таблице 1).
Задачи контрольной работы выбираются по индивидуальным вариантам. Вариант должен соответствовать последней цифре шифра – номера студенческого билета. Например, если шифр 010478, студент выполняет вариант 8.
Таблица 1
| № п/п | специальность | Номера листов | |
| название | шифр | ||
| Строительство | 1,2,3,4 5,6,8,9 | ||
| Пожарная безопасность | 1,2,3,4,5,6,7 | ||
| Механизация сельского хозяйства | 1,2,3,4,5,6,7-а | ||
| Электрификация сельского хозяйства | 1,2,3,4,5,6,7-а | ||
| Агроинженерия | 1,2,3,4,5,6,7-а |
Лист 1 – это титульный лист контрольной работы, который необходимо выполнить в соответствии с рисунками 1-5 в зависимости от специальности обучения (студенты, обучающиеся по ускоренной программе должны в скобках после специальности указать «ускоренное обучение»). Титульный лист, также как и все листы контрольной работы оформляется рамкой (20 мм от левого края листа, с других сторон по 5 мм).
Лист 2 – работа над ошибками (пример листа помещен на рисунке 6). Этот лист выполняется на обороте листа 1. Основная надпись для листа 2 показана на рисунке 7.
Листы 3,8,9 содержат основную надпись в соответствии с рисунком 8. На листах 4,5,6,7,7-астуденты специальностей:«Промышленное и гражданское строительство», «Строительство», «Пожарная безопасность» выполняют основную надпись по рисунку 9, а студенты специальностей: «Механизация сельского хозяйства», «Электрификация сельского хозяйства», «Агроинженерия» - по рисунку 10.
Запись в основной надписи «КГСХА. ПГС. 06345. КР. 1,5» означает: КГСХА – Курганская государственная сельскохозяйственная академия, ПГС – факультет промышленного и гражданского строительства, 06345 – номер зачетной книжки студента, КР. 1,5 – контрольная работа №1, вариант 5. Студенты других факультетов вместо «ПГС» пишут соответствующую аббревиатуру.
Все листы контрольной работы выполняются на листах плотной чертежной бумаги формата А3 (420х297 мм), только лист 6 – на ватмане формата А4 (210х297 мм).
Листы контрольной работы прочно сшивают скоросшивателем или степлером.
Контрольная работа рецензируется и должна включать все листы, предусмотренные ее содержанием, в противном случае контрольная работа рецензентом не рассматривается. Преподаватель вправе аннулировать контрольную работу, если при собеседовании убеждается, что контрольная работа выполнена не самостоятельно или скопирована.

Рисунок 1 – Пример оформления титульного листа контрольной работы для студентов специальности «Промышленное и гражданское строительство»

Рисунок 2 – Пример оформления титульного листа контрольной работы для студентов, обучающихся по направлению «Строительство»

Рисунок 3 – Пример оформления титульного листа контрольной работы для студентов специальности «Пожарная безопасность»

Рисунок 4 – Пример оформления титульного листа контрольной работы для студентов специальности «механизация сельского хозяйства», «электрификация сельского хозяйства»

Рисунок 5 – Пример оформления титульного листа контрольной работы для студентов, обучающихся по специальности «Агроинженерия»

Рисунок 6 – Пример выполнения листа 2 «Работа над ошибками»

Рисунок 7 – Основная надпись для листа 2

Рисунок 8 - Основная надпись для листов 3,8,9

Рисунок 9 – Основная надпись для листов 4,5,6,7, выполняемых студентами специальностей:«Промышленное и гражданское строительство», «Строительство», «Пожарная безопасность»

Рисунок 10 – Основная надпись для листов 4,5,6,7-а, выполняемых студентами специальностей «Механизация сельского хозяйства», «Электрификация сельского хозяйства», «Агроинженерия»
Лист 3
ФорматА3. Выполнить четыре задачи. Пример оформления листа см. на рисунке 11. Решение каждой задачи располагается в специально отведенной для нее зоне, ограниченной штриховыми линиями. Размеры зон указаны на рисунке 12.
Задача 1.Вычертить изображение плоской детали и нанести ее размеры, которые берутся согласно рисунку 12-а и таблице 2.
Таблица 2
| номер варианта | размеры, мм | ||||||
| а | b | c | d | e | ø1 | ø2 | |
Указания к выполнению задачи 1.Нанесение размеров выполнять по ГОСТ 21.105-91 и 2.307-68*. Общее количество размеров на чертеже должно быть минимальным, но достаточным для изготовления и контроля изделия. Не допускается повторять размеры одного и того же элемента на разных изображениях. Линейные размеры указывают в миллиметрах. Размеры на чертежах указывают размерными числами и размерными линиями. Размерную линию с обоих концов ограничивают засечками в виде толстых основных линий длиной 2…4 мм, проводимых с наклоном вправо под углом 450 к размерной линии (рисунок 13-а). На машиностроительных чертежах взамен засечек применяют стрелки (рисунок 13-б). Размерные линии радиусов дуг и диаметров окружностей ограничивают стрелками.
Размерные линии предпочтительно наносить вне контура изображения. Выносные линии должны выходить за размерные линии на 1…3 мм. Минимальные расстояния между параллельными размерными линиями должны быть 7 мм, а между размерной и линией контура – 10 мм и выбраны в зависимости от изображения размеров и насыщенности чертежа. Размерные числа наносят над размерной линией на расстоянии не менее 1 мм и возможно ближе к ее середине. Необходимо избегать пересечения размерных и выносных линий.
Размеры, относящиеся к одному и тому же конструктивному элементу (пазу, выступу, отверстию и т.д.), рекомендуется группировать в одном


месте, располагая их на том изображении, на котором геометрическая форма данного элемента показана наиболее полно.
При нанесении размера радиуса или диаметра перед размерным числом помещают соответственно прописную букву R или знак Ø (рисунок 14). При изображении детали в одной проекции размер ее толщины (длины) наносят на полке линии-выноски и перед его значением помещают строчную букву s.
При обводке чертежа необходимо строго придерживаться требований ГОСТ 2.303-68*, регламентирующих начертание и основные назначения линий на чертежах.
Задача 2. Вычертить изображение плоской детали, нанести размеры и секущую плоскость. Размеры детали принимаются согласно рисунку 12-б и таблице 3.
Таблица 3
| номер варианта | размеры, мм | ||||
| ø1 | ø2 | ø3 | ø4 | R1 | |

Рисунок 13 Рисунок 14
Указания к выполнению задачи 2.Оформление изображения детали выполнить в строгом соответствии с государственными стандартами СПДС и ЕСКД (см. указания к выполнению задачи 1).
Задача 3.Выполнить графические обозначения шести видов материалов (в сечении). Материалы принимаются по таблице 4, отмеченные «+».
Указания к выполнению задачи 3.Графические обозначения материалов в сечениях и правила нанесения их на чертежи должны соответствовать ГОСТ 2.306-68*. Обозначение материалов оформляют по рисунку 12-в и таблице 4. Линии штриховки выполняются тонкой линией (s/3) по ГОСТ 2.303-68* под углом 450 к линии контура изображения. Расстояние между параллельными линиями штриховки должно быть в зависимости от масштаба 1…10 мм.
Таблица 4

Задача 4. Вычертить с простановкой размеров три элемента оформления чертежа: обозначение секущей плоскости, размерную линию и отметку уровня на фасаде (см. рисунок 12-г).
Указания к выполнению задачи 4.Изображения указанных элементов должны соответствовать ГОСТ 2.305-68 и 21.105-93. На изображениях элементов указываются их конкретные размеры (см. рисунок 11-4).
Лист 4
ФорматА3. Выполнить задачу на построение основных видов детали. Пример оформления листа и задание к нему см. на рисунках 15,16.
Задача.По заданному аксонометрическому изображению детали построить три основных вида (вид спереди, сверху и вид слева). Индивидуальные задания приведены в таблице 5.
Указания к выполнению задачи. В соответствии с ГОСТ 2.305-68 установить виды детали. Особое внимание обратить на выбор главного вида (вида спереди). Нанести размеры.
Лист 5
Формат А3. Выполнить две задачи на построение видов, разрезов и сечений детали. Пример оформления листа см. на рисунке 17.
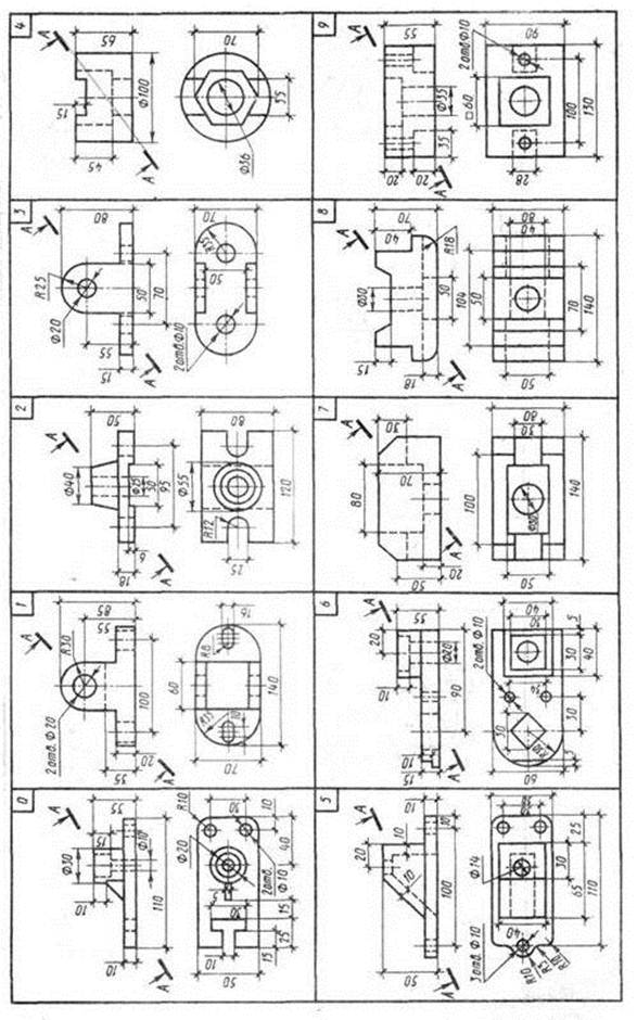
Задача 1.Построить три вида детали (вид спереди, вид сверху, вид слева) с необходимыми разрезами по двум данным видам. Индивидуальные задания по вариантам приведены в таблице 6.
Указания к выполнению задачи 1.Изучить содержание ГОСТ 2.305-68, обратив внимание на принятые в нем условности и упрощения. Часть вида и часть соответствующего разреза допускается соединять, разделяя их сплошной волнистой линией. Если при этом соединяются половина вида и половина разреза, каждый из которых является симметричной фигурой, то разделяющей линией служит ось симметрии. Если вид, разрез или сечение представляют симметричную фигуру, допускается вычерчивать половину изображения или немного более половины изображения с проведением в последнем случае линии обрыва. Нанести на изображение размеры.
Задача 2.По заданному положению секущей плоскости построить сечение детали. Положение секущей плоскости указано в индивидуальном задании.
Указания к выполнению задачи 2.Построение сечения выполняют в строгом соответствии с правилами построения проекций в начертательной геометрии, а оформление – в соответствии с ГОСТ 2.305-68. Сечение располагается на свободном поле листа 5. Контур выносного сечения
изображают сплошными основными линиями. Плоскость сечения штрихуют. Сечение сопровождают надписью по типу «1-1», «А-А». Номер шрифта надписи в два раза больше, чем номер шрифта, принятый для размерных чисел на данном чертеже.


Рисунок 16
Таблица 5
1 2
|
3 4
|
5 6
|
Продолжение таблицы 5
7 8
|
9 0
|

Таблица 6

Лист 6
Формат А4 (А3). Выполнить задачу на построение аксонометрического изображения детали. Пример оформления листа см. на рисунке 18.
Задача. По двум видам детали построить ее аксонометрическую проекцию с вырезом ¼ части. Исходные данные принимают по таблице 6.
Указания к выполнению задачи. ГОСТ 2.317-69* рекомендует пять видов наглядных изображений: прямоугольную изометрию, прямоугольную диметрию, косоугольные фронтальные изометрию и диметрию и косоугольную горизонтальную изометрию. Вид аксонометрических проекций выбирают в зависимости от формы изображаемых предметов. В качестве начала координат может быть взята одна из характерных точек предмета. Предмет можно включить в параллелепипед и проводить построение аксонометрии, делая отчеты от его граней.
На рисунке 19-а показаны углы между аксонометрическими осями, а также направление осей эллипсов, являющихся проекциями окружностей (параллельны плоскостям XOY, XOZ, YOZ).
Эллипсы в целях облегчения построений могут быть заменены овалами, состоящими из дуг окружностей, проведенных из четырех центров (рисунок 19-б). В прямоугольной изометрии для построения овалов центры О1 и О2 определяют размером, равным половине большой оси эллипса, а центры О3 и О4 – размером, равным половине малой оси.
В прямоугольной и косоугольной диметрии при построении овала, заменяющего эллипсы 1 и 3, центры О1 и О2 располагают от точки О на расстоянии большой оси эллипса. Центры О3 и О4 располрасстоянии большой оси эллипса. Центры О3 и О4 располагают от точек А и В большой оси эллипса на расстоянии, равном четвертой части малой оси эллипса.
Центры О1, О2 ,О3 и О4 дуг овала, заменяющего эллипс 2 в прямоугольной диметрии, находятся в точках пересечения горизонтальных линий, проведенных из точек M и N (прямая МN параллельна оси ОХ), с осью овала АВ и осью С1D1 эллипса.
Последовательность построения аксонометрии детали показана на рисунке 20.
В аксонометрии разрезы выполняют двумя (и более) секущими плоскостями. Чтобы начертить разрез предмета, вначале нужно построить его аксонометрическое изображение, а затем наметить линии, по которым он рассекается плоскостью. Направление линий штриховки принимается параллельным диагоналям граней куба, которые соответственно параллельны плоскостям XOY, XOZ, YOZ.
Все линии построения сохранять, в противном случае лист не будет зачтен.

Рисунок 18
1 2
3 4
5 6
7 8