Задание
1. Выполнить рабочие чертежи нестандартных деталей.
2. Вычертить в аксонометрии детали 6,13,15.

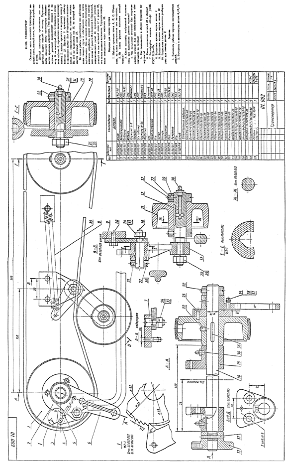
МЕХАНИЗМ РУЧНОГО ПРИВОДА
Для поворота вала машины от руки служит механизм ручного привода. Он состоит из маховика 2, закрепленного шрифтом 17 на валу 1, двух кулачковых полумуфт 8 и 9, из которых одна (8) закреплена штифтом на валу 1, а другая (9) – на валу машины (вал показан на чертеже условно).
Чтобы повернуть вал машины, на котором установлено на шпонке 15 зубчатое колесо 7, маховик вместе с валом 1 нужно подать рукой вправо. Пружина 4 сожмется и полумуфты 8 и 9 войдут в зацепление.
Вал 1 установлен в корпусе подшипника скольжения 3, который крепится к станине болтами 13. Пружина 4 с одной стороны упирается в буртик вала 1, а с другой стороны поджимается кольцом 5 и втулкой 6, которая является второй опорой вала. Втулка 6 крепится на корпусе подшипника винтами 14. Корпус подшипника имеет отверстие для смазки.
Вопросы для чтения чертежа
1. Найдите проекции точек А, В, С. Объясните, на каких поверхностях они находятся.
2. Что называется разрезом? Какие бывают разрезы? Как они обозначаются на чертежах?
3. Какие условности применяются при изображении пружин на сборочных чертежах?
4. Как и с какими деталями соединена деталь 3?
5. Как смазываются в сборке трущиеся поверхности?
6. Определите диаметр делительной окружности и диаметр вершин зубьев зубчатого колеса 7 (
и
).
7. Объясните назначение детали 19.
8. Выполните эскизно чертеж детали 3.
9. Расскажите о последовательности разборки узла для замены детали 8