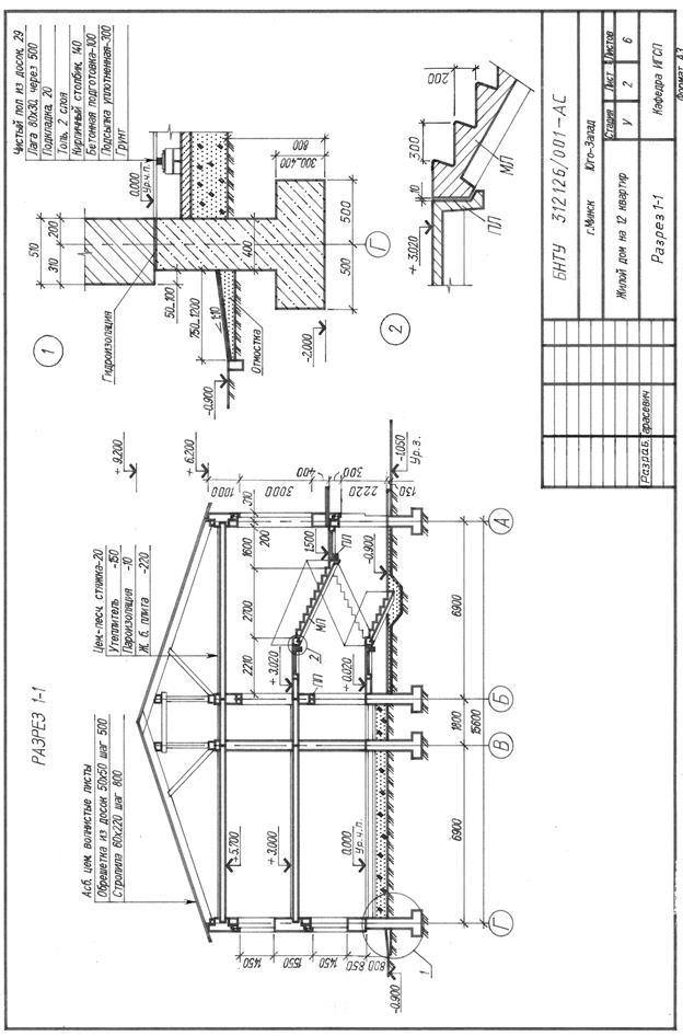
Построение разреза по лестнице
Выполняют расчет лестничной клетки. Размеры лестничной клетки определяются в результате произведенного расчета. В жилых помещениях
применяются пологие лестницы с уклоном 1:2 и средние с уклоном 1:1,75. Лестница состоит из площадок и маршей – наклонных частей, соединяющих площадки и состоящих из ступеней. Ступень состоит из горизонтального участка – проступи и вертикального – подступенка. Размеры ступеней определяются из среднего шага человека по соотношению 2h + b = 600 мм. Высота подступенка выбирается в пределах от 150 до 180 мм. Ширина проступи от 270 до 300 мм. При уклоне лестницы 1:2 отношение h : b = 150:300, при уклоне 1:1,75 - h : b = 165:290. Число ступеней в каждом марше принимают не менее 3 и не более 16.
Чтобы на разрезе здания правильно и аккуратно вычертить лестницу, необходимо подготовить сетку (рис.3.10). Сетка состоит из вертикальных линий, расположенных друг от друга на расстоянии, равном ширине проступи, и горизонтальных – на расстоянии высоты подступенка.
Пример. Высота этажа Н = 3000 мм, уклон лестницы 1:2, ширина марша 1200 мм. Ширина лестничной клетки равна ширине двух маршей и промежутку между ними. Размер m равен 100-200 мм. Выбираем двухмаршевую лестницу. Следовательно, высота одного марша Н/2 = 1500 мм. При уклоне лестницы 1:2 отношение h:b = 150:300,. Определим число ступеней марша H/2 : h = 1500:15, т.е. 10 подступенков.
Длина лестничной клетки L определяется из ширины двух лестничных площадок и величины заложения марша. Ширина площадки принимается обычно равной ширине марша или больше, но не менее 1200 мм.
Заложение марша L = b(h-1). В плане изображается на одну ступень меньше, т.к. верхняя ступень совмещается с лестничной площадкой L = 2х1200+9х300 = 5100 мм. На плане первого этажа изображается цокольный и нижний марш (рис.3.11). Толщина лестничной площадки 30-40 мм. Лестничные марши ограждаются перилами высотой 900 мм.

Рис. 3.10. Построение лестничной клетки на разрезе

Рис. 3.11. Построение лестничной клетки на плане
Следует иметь в виду, что секущая плоскость по лестнице всегда проходит по ближайшим к наблюдателю маршам. Узлы опирания лестничного марша на лестничную площадку и металлическое ограждение показаны на рис.3.12.

Рис. 3.12. Узлы опирания лестничного марша на лестничную площадку:
а) верхний узел; б) промежуточный узел
6. Наносят размеры. На разрезах координационные оси выносят вниз, проставляют в кружках соответствующие марки, проводят размерную линию и наносят над ней размеры. Положение конструктивных элементов определяют
при помощи высотных отметок, которые выносят на линиях уровней соответствующих элементов. Внутри разреза наносят высоты этажей и дверных проемов, а также высотные отметки уровней полов и площадок лестницы.
7. В названиях разрезов указывают обозначение соответствующей секущей плоскости, отмеченной на плане, например: РАЗРЕЗ 1-1.
Примеры оформления листа задания приведены на рис.3.13, 3.14.

| Рис. 3.13. Пример выполнения чертежа разреза здания |

| Рис. 3.14. Пример выполнения разреза здания |
Узлы. Вычертить два узла конструкций здания.
Узлы представляют собой увеличенные фрагменты зданий, сооружений или их элементов.
При выполнении узлов соответствующее место отмечают на исходном изображении замкнутой сплошной тонкой линией (окружностью или овалом) с маркировкой на полке линии-выноски римскими, арабскими цифрами или буквами русского алфавита.
На узлах наносят размеры, указывающие характер соединения составных частей, марки элементов и т.д. Для наглядности на разрезе наносят условные обозначения материалов по ГОСТ 2.306-68 (табл. 3.3).
Таблица 3.3
| Материал | Обозначение |
| Металл и твердые сплавы |
|
| Неметаллические материалы, в том числе волокнистые; монолитные и плитные (прессованные), за исключением указанных ниже | |
| Дерево | |
| Камень естественный | |
| Керамика и силикатные материалы для кладки | |
| Бетон | |
| Стекло и другие светопрозрачные материалы | |
| Жидкости | |
| Грунт естественный |
Лист 3.Выполнить фасад здания.
Фасад. Фасадом здания принято называть его внешний вид спереди, сбоку или сзади. Планы и разрезы здания определяют все размеры, необходимые для вычерчивания фасадов.