Теоретические сведения
Лабораторная работа № 10
Сборочные чертежи
Часа
Цель лабораторной работы:освоение правил выполнения и оформления сборочных чертежей, содержащих резьбовое соединение; приобретение навыков и умений построения чертежей резьбовых деталей и соединений.
Задание на лабораторную работу:
1 -изучить: содержание и правила построения сборочных чертежей.
Графическое задание на лабораторную работу:
По индивидуальным заданиям, приведенным на стр. 212 - 241 в учебнике "Боголюбов, С.К. Индивидуальные задания по курсу черчения: практ. пособие для учащихся техникумов / С.К. Боголюбов. - М.: Высш. шк., 1989. -368 с.", построить чертежи деталей с применением разрезов, а именно:
1. На отдельном листе формата А3 вычертить вид спереди и сбоку заданного резьбового соединения, при этом вид спереди заменить соединением половины вида и половины фронтального разреза. Масштаб изображения увеличить в 4 раза. Нанести номера позиций и габаритные размеры.
2. На отдельных листах формата А3 вычертить каждую деталь в отдельности. Нанести размеры, указать материал детали (Ст. 3. ГОСТ 380-94 ).
3. Выполнить спецификацию на листе формата А4.
Образец графической работы приведен на рисунках 10.1 -10.4.
Самостоятельная домашняя работа: Дочертить условное изображение резьбы на стержне и в отверстии и выпорлнить указанные в вариантах заданий построения.I (М20 X 1,5) при длине нарезанной части L. Начертить вид слева. Обозначить резьбу.

Рис. 10.1 - Пример сборочного чертежа

Рисунок 10.2 - Пример спецификации к сборочному чертежу

Рисунок 10.3 - Пример чертежа детали с наружной резьбой

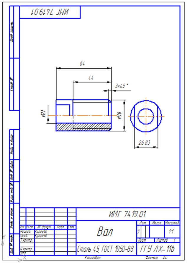
Рисунок 10.4 - Пример чертежа детали с внутренней резьбой
Теоретические сведения