Закрепление изученного материала
Организационная часть
а) приветствие
Вот звонок звенит с утра,
Черчение начинать пора.
Парты ждут уже детей,
Рассаживайтесь поскорей!
б) проверка отсутствующих
в) проверка инструментов, готовности к уроку
г) сообщение плана занятия
д) психологический настрой учащихся на сознательную, плотную работу
Решение задачи проблемного характера
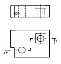
Демонстрация модели детали.
Вопросы к студентам:
- как выявить внутренний контур детали? (с помощью разреза)
- что такое разрез?
- какие разрезы вам уже знакомы?
- как провести в данной детали секущую плоскость, чтобы выявить весь внутренний контур? (показ студентами)
Подвести студентов к самостоятельному выводу о том, что для выявления формы этой детали необходимо несколько секущих плоскостей, получился новый вид разреза - сложный.
Вывод. Переход.
Формирование графических знаний и умений
а) сообщение темы, плана изучения темы, формулировка целей учащимися
б) формулировка учащимися определения «сложный разрез»
в) пользуясь слайдами и моделями, студенты самостоятельно классифицируют сложные разрезы, выводят правила их изображения и обозначения
Вывод.
Закрепление изученного материала
а) устный фронтальный опрос:
- какие разрезы называют сложными?
- в каких случаях применяются сложные разрезы?
- какой разрез называется ступенчатым? ломаным?
- в чем состоит особенность построения ломаного разреза?
- чем отличается обозначение сложных разрезов от простых?
Вывод.
б) фронтальное устное решение графических задач
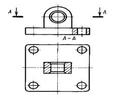
№ 1. На рисунке (слайде) даны простые и сложные разрезы. Определите названия разрезов.
А
| Б
|
В
| Г
|
Д
| Е
|
№ 2. Определите, в каких примерах целесообразно применить ступенчатый разрез?
А
| Б
|
В
|
№ 3. Определите, в каких примерах целесообразно применить ломаный разрез?
А
| Б
|
В
|
№ 4.На рисунке только в одном случае разрез обозначен правильно. На каком чертеже ступенчатый разрез правильно изображен и обозначен. Исправьте ошибки остальных чертежей.
А
| Б
|
В
| Г
|
№ 5. На рисунке только в одном случае разрез обозначен правильно. На каком чертеже ломаный разрез правильно изображен и обозначен. Исправьте ошибки остальных чертежей.
А
| Б
|
в) фронтальное решение графических задач у доски (несколько студентов)
Задание: выполнить и обозначить ступенчатый и ломаный разрез


г) индивидуальные графические упражнения
1 группа: по карточкам-заданиям (по вариантам)
2 группа: с использованием графического редактора на компьютере
Задание: выполнить и обозначить ступенчатый и ломаный разрезы
Вариант 1.

Вариант 2.

д) проверка и оценка графических упражнений
5. Домашнее задание:
а) составить тест закрытого типа по сложным разрезам (количество вопросов 6-8),
б) по наглядному изображению детали выполнить ее чертеж в необходимом количестве изображений с применением сложного разреза (без простановки размеров)

в) подготовить формат А4 к графической работе
Заключительная часть
Составить пятистишие, раскрывающее то, что происходило на уроке: существительное, два прилагательных, три глагола, образное сравнение, мое отношение к изученному.
РАБОЧИЙ ЛИСТ СТУДЕНТА = «Сложные разрезы»
(раздается студентам)
№ 1. На рисунке даны простые и сложные разрезы. Определите названия разрезов.
А
| Б
|
В
| Г
|
Д
| Е
|
№ 2. Определите, в каких примерах целесообразно применить ступенчатый разрез?
А
| Б
|
В
|
№ 3. Определите, в каких примерах целесообразно применить ломаный разрез?
А
| Б
|
В
|
№ 4.На рисунке только в одном случае разрез обозначен правильно. На каком чертеже ступенчатый разрез правильно изображен и обозначен. Исправьте ошибки остальных чертежей.
А
| Б
|
| В | Г |
№ 5.На рисунке только в одном случае разрез обозначен правильно. На каком чертеже ломаный разрез правильно изображен и обозначен. Исправьте ошибки остальных чертежей.
А
|
Б
|
ДОМАШНЕЕ ЗАДАНИЕ:
а) составить тест закрытого типа по сложным разрезам (количество вопросов 6-8),
б) по наглядному изображению детали выполнить ее чертеж в необходимом количестве изображений с применением сложного разреза (без простановки размеров)

в) подготовить формат А4 к графической работе