Координационные оси.

Здание или сооружение в плане расчленяется осевыми линиями на ряд элементов. Эти линии, определяющие расположение основных несущих конструкций (стен, колонн), называются координационными осями.

Каждому отдельному зданию или сооружению присваивают самостоятельную систему обозначений координационных осей (рис.9). Координационные оси наносят на изображения тонкими штрихпунктирными линиями с длинными штрихами, обозначают

Рис. 9 арабскими цифрами и прописными буквами русского алфавита (за исключением букв: Ё, З, Й, О, Х, Ц, Ч, Щ, Ъ, Ы, Ь) в кружках диаметром 6 - 12 мм. Цифрами обозначают координационные оси по стороне здания и сооружения с большим

количеством осей.

Последовательность цифровых и буквенных обозначений координационных осей принимают по плану слева направо и снизу вверх.

Необходимо следить за тем, чтобы на планах этажей совпадали координационные оси наружных и внутренних стен.

Обозначения координационных осей, как правило, наносят по левой и нижней стороне плана здания или сооружения.

Эти линии, определяющие расположение основных несущих конструкций (стен и колонн), называются продольными и поперечными координационными осями.

Расстояние между координационными осями в плане здания называют шагом.

Рис.10 По преобладающему в плане направлению шаг может быть продольным или поперечным. Расстояние между продольными координационными осями здания, которое соответствует пролету основной несущей конструкции перекрытия или покрытия, называют пролетом. Для определения взаимного положения элементов здания применяют сетку

координационных осей его несущих конструкций (рис.10).

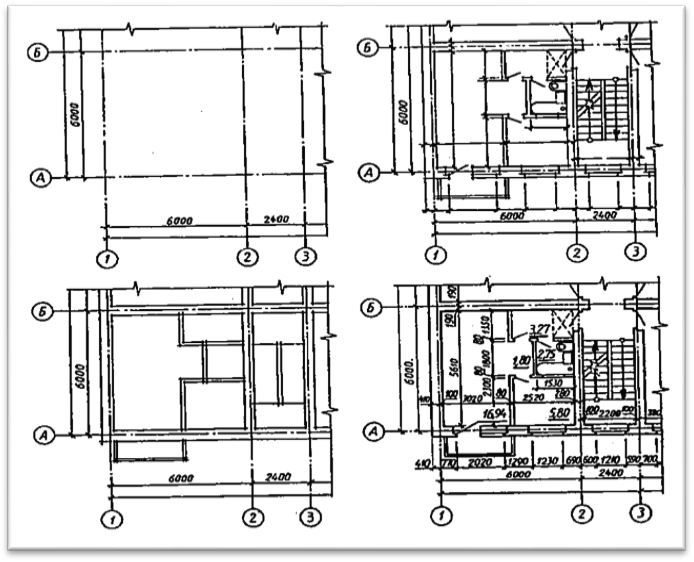
3.3. Последовательность вычерчивания плана (по этапам).

Последовательность вычерчивания здания пока­зана на рис. 11.

1 этап. Вычерчивание плана начинают с нанесения координационных осей здания, сначала продольных, а потом - поперечных. Эти оси являются условными геометрическими линиями, которые могут не совпадать с осями симметрии.

Координационные оси здания наносят штрих-пунктирными линиями с длинными штрихами (толщиной от S/2 до S/3), обозначают марками в кружках диаметром 10 мм для М 1 : 100.

Затем выполняются внешние выносные и размерные линии.

Рис.11

2 этап.Построив координационные оси, вычерчивают контуры наружных и внутренних капитальных стен и колонн.

Рис.12 Существует три типа привязки капитальных стен к координационным осям здания: односторонняя (1), когда вся толщина стены располагается по одну сторону от оси, всегда в сторону внешней части здания; центральная (2), когда координационная ось проходит посередине толщины стены; двусторонняя (3), когда ось расположена на заданном расстоянии от грани стены (рис. 12).

В наружных стенах толщиной 510 мм координационная ось пройдет на расстоянии 200 мм или 100 мм от внутренней грани стены. В лестничных клетках внутренней гранью считается та, которая обращена в сторону лестничной клетки.

Привязка конструктивного элемента определяется расстоянием от координационной оси до грани или геометрической оси элемента. В наружных несущих стенах координационная ось проходит от внутренней несущей стены кратно модулю, или его половине. В кирпичных стенах это расстояние, чаще всего, принимается равным 200 мм, а в тонких - величине модуля, т.е. 100 мм.

3 этап. После вычерчивания наружных и внутренних капитальных стен и колонн изображают контуры перегородок. Следует обратить внимание на различие в присоединении наружных и внутренних капитальных стен и перегородок.

Площадки, антресоли и другие конструкции, расположенные выше секущей плоскости, изображают схематично тонкой штрихпунктирной линией с двумя точками.

Так как на схемах отсутствуют размеры внутренней планировки, то при нанесении перегородок, а также при вычерчивании дверных и оконных проемов необходимо соблюдать следующее:

Ширина прихожей - не менее 1100 мм;

Ширина прихожей с поворотом ее - не менее 1200 мм;

Длина жилой комнаты не должна превышать двойной ее ширины.

На плане показывается также условное обозначение лестниц, санитарно-технического оборудования и направление открывания дверей.

Вычерчиваются оконные (ОК) и дверные проемы (Д), при этом необходимо стремиться к тому, чтобы размеры простенков были, по возможности, одинаковыми.

Условное обозначение оконных и дверных проемов с заполнением и без него изображается согласно ГОСТ 21.501-93.

Если план вычерчивается в масштабе 1:50 или 1:100, то оконные и дверные проемы вычерчиваются с четвертями при их наличии (четверть – это выступ в верхних и боковых частях проемов кирпичных стен, уменьшаемый продуваемость и облегчающий крепление коробок).

Сумма размеров элементов плана этажа, расположенных между двумя осями, должна равняться общему межосевому размеру.

В случаях, когда оконные проемы расположены выше секущей плоскости, по периметру плана располагают сечения соответствующих стен на уровне оконных проемов.

4 этап.На выполненный чертеж плана наносят размеры в мм. Наружные размеры, расположенные за габаритом плана, представляют собой три «цепочки».

В первой «цепочке», считая от контура плана, располагаются размеры, обозначающие ширину оконных и дверных проемов, простенков и выступающих частей здания с привязкой их к координационным осям.

Вторая «цепочка» заключает в себе размер между осями капитальных стен и колонн.

В третьей «цепочке» проставляется размер между координационными осями крайних наружных стен. При одинаковом расположении проемов на двух противоположных фасадах здания допускается нанесение размеров только на левой и нижней сторонах плана.

В габаритах плана необходимо нанести размеры всех помещений в чистоте, т.е. от стены до стены. Затем нанести толщину стен и перегородок, размеры проемов к ближайшим стенам или координационным осям.

На планах наносят также горизонтальные следы секущих плоскостей. Проводят две внутренние размерные линии (горизонтальную и вертикальную) и заканчивают общее оформление плана с соблюдением типов линий.
Необходимо подсчитать жилую площадь в одной квартире и в каждой комнате, поставить площадь в правом нижнем углу с точностью до сотых единиц и подчеркнуть основной линией. Полезную площадь определяют как сумму жилой и подсобной площадей.

План лестницы необходимо вычерчивать одновременно с вычерчиванием ее на разрезе здания.