Призначення жорсткостей елементів
Кінцевим елементам необхідно призначити жорсткості, які визначаються характеристиками матеріалу, видом КЕ і його геометричними характеристиками. Призначення жорсткості виконується за допомогою меню Жестко-сти - Жесткости элементов. У вікні призначення жорсткостей після натиснення кнопки «Добавить» з'явиться база перерізів, з якої необхідно вибрати двотавровий переріз (вкладка «Стандартные типы сечений») и пластины (вкладка №3 - «Параметры пластин и объемных элементов и численные жесткостные параметры»).
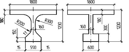
Розміри двотаврового перерізу необхідно задати так, щоб його геометричні характеристики були еквівалентні характеристикам початкового перерізу (рис. 6).

Рис. 6. Приведення поперечного перерізу балки до двотаврового перерізу
Значення модулів пружності бетону при стиску і розтягу Еь приймають по табл. 28 [3]. Для бетону класу по міцності В35 балки пролітної будови Еь = 352 кгс/см , а для бетону класу по міцності В25 монолітних ділянок Еь = 306 кгс/см. При цьому значення модулів пружності Еь для бетону, підданого тепловологісній обробці, а також для бетону, що працює в умовах поперемінного заморожування і відтавання, слід зменшувати на 10%. Таким чином, значення модуля пружності для бетону балки складе Еь = 352 • 0,9 = 317кгс/см , а для бетону плити проїзної частини Еь = 306 • 0,9 = = 275 кгс/см . Коефіцієнт поперечної деформації V (коефіцієнт Пуассона) бетону слід приймати рівним 0,2.
ПК «Лира» дозволяє автоматично обчислювати власну вагу конструкцій, якщо задано значення об'ємної ваги R0 в жорсткістних характеристиках.

Рис. 7. Модель пролітної будови
Оскільки з'єднання стрижньових КЕ з плитковими КЕ відбувається у вузлах розрахункової схеми, а вузли знаходяться в центрі ваги перерізу, модель буде декілька відрізнятися від реальної конструкції (рис. 7). Дану відмінність необхідно буде врахувати при заданні власної ваги конструкції або шляхом зменшення об'ємної ваги плити проїзної частини, або відмовою від автоматичного обчислення власної ваги плити з його завданням у вигляді навантаження.
Призначимо жорсткість стрижньового елементу так, щоб можна було виконати автоматичне обчислення власної ваги конструкції, для чого задамо значення об'ємної ваги R0 = 2500 кгс/м у вікні призначення жорсткості стержня (рис. 8).

Рис. 8. Призначення жорсткості стрижньовому КЕ
Для автоматичного обчислення власної ваги плити проїзної частини обчислимо зменшене значення об'ємної ваги плити. Ширина монолітної ділянки складає 300 мм, висоту плити проїзної частини 180 мм. Вага 1 погонного метра монолітної ділянки складе 0,3 м · 0,18 м · 2 500 кгс / м = 135 кгс / м . Таким чином, об'ємна вага плиткового КЕ шириною 2 100 мм (відстань між осями балок або між вузлами стрижньових КЕ) і заввишки 180 мм складе 135 кгс /м ÷ 2,1 м ÷ 0,18 м = 357 кгс /м3 (рис. 9).
Після того, як жорсткості задані, їх необхідно призначити відповідним КЕ розрахункової схеми. Для цього за допомогою меню Выбор - Отметка элементов рамкою відзначають всі елементи розрахункової схеми (вся схема буде виділена червоним кольором). Потім у вікні «Жесткости элементов» вибирають будь-який з двох типів жорсткостей і встановлюють його як поточний тип (кнопкою «Установить как текущий тип» або подвійним клацанням миші). Після чого натискають кнопку «Назначить».

Рис. 9. Призначення жорсткості плитковому КЕ
Оскільки стрижньовим КЕ не може бути призначений тип жорсткості «пластина», а плитковим КЕ не може бути призначений тип жорсткості «двутавр», програма призначить поточний тип жорсткості відповідним елементам і видасть попередження «Для отмеченных элементов данный тип жесткости запрещен». При цьому відміченими залишаться ті елементи, для яких жорсткість ще не призначена. Після чого залишиться змінити поточний тип жорсткості і знову натиснути кнопку «Назначить».