Порядок ограждения мест производства работ на перегоне
Всякое препятствие для движения (место, требующее остановки) на перегоне и станции, а также место производства работ, опасное для движения и требующее остановки или уменьшения скорости, должно быть ограждено сигналами с обеих сторон независимо от того, ожидается поезд (маневровый состав) или нет.
На перечисленных ниже участках Белорусской железной дороги с руководящими уклонами 0,006…0,010 первая петарда и сигнал уменьшения скорости устанавливаются соответственно на расстояниях ______ м (А) и ______ м (Б).
1 Граница Московской железной дороги – Красное–Брест.
2 Граница Юго-Западной железной дороги – Гомель–Минск – граница Литовской железной дороги.
3 Граница Октябрьской железной дороги – Витебск–Орша–Жлобин–Калинковичи – граница Юго-Западной железной дороги.
4 Граница Московской железной дороги – Закопытье–Гомель–Калинко-вичи – граница Юго-Западной железной дороги.
5 Граница Московской железной дороги – Витебск–Полоцк – граница Латвийской железной дороги.
6 Граница Львовской железной дороги – Лунинец–Барановичи–Лида – граница Литовской железной дороги.
7 Громы–Крулевщизна–Молодечно.
8 Барановичи–Волковыск.
9 Мосты–Гродно.
10 Граница Львовской железной дороги – Хотислав–Брест.
На остальных перегонах при ограждении мест производства работ, требующих остановки поездов, и мест внезапно возникших препятствий, первая петарда и сигнал уменьшения скорости устанавливаются соответственно на расстояниях _____ м (А) и _____ м (Б) от сигнальных знаков «Начало опасного места» и «Конец опасного места».
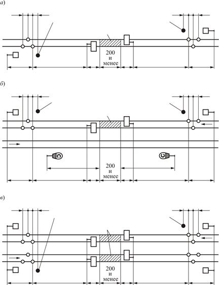
Места производства работ, требующие остановки поездов, при фронте работ 200 м и менее на однопутном участке, на одном из путей и на обоих путях двухпутного участка ограждаются сигналами остановки порядком, указанным на рисунке 9.8.
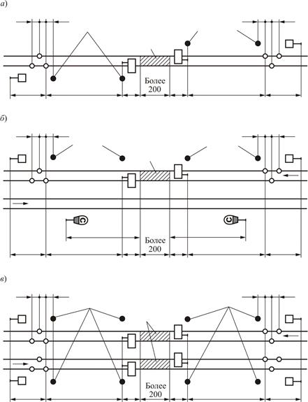
При производстве работ развернутым фронтом (более 200 м) места работ ограждаются порядком, указанным на рисунке 9.9. В этом случае устанавливаемые на расстоянии 50 м от границ участка, требующего ограждения, переносные красные сигналы должны находиться под охраной _____________
_________________________________________________________________.
Места производства работ, требующие остановки поездов на многопутных участках, ограждаются порядком, указанным на рисунке 9.10. При этом сигналисты могут находиться на междупутье, если его ширина не менее ____ м, при меньшей ширине междупутья сигналисты следят за подходом поездов, находясь на обочине.
Места производства работ на перегонах, требующие следования поездов с уменьшенной скоростью, ограждаются с обеих сторон на расстоянии 50 м от границ участка работы переносными сигнальными знаками «Начало опасного места» и «Конец опасного места». От этих сигнальных знаков на расстоянии А (рисунок 9.11) устанавливаются переносные сигналы уменьшения скорости.
Места работ на пути, не требующие ограждения сигналами остановки или уменьшения скорости, но требующие предупреждения работающих о приближении поезда, ограждаются с обеих сторон переносными сигнальными знаками «С, которые устанавливаются ______________________________
_________________________________________________________________.
Переносные сигнальные знаки «С» устанавливаются на расстоянии 500…1500 м (рисунок 9.12) от границ участка работ, а на перегонах, где обращаются поезда со скоростью более 120 км/ч, – на расстоянии 800…1500 м.

Рисунок 9.8 – Схема ограждения мест производства работ на перегоне, требующих остановки поездов при фронте работ 200 м и менее:
а – на однопутном участке; б – на одном из путей двухпутного участка;
в – на обоих путях двухпутного участка

Рисунок 9.9 – Схема ограждения мест производства работ на перегоне, требующих остановки поездов при фронте работ более 200 м:
а – на однопутном участке; б – на одном из путей двухпутного участка;
в – на обоих путях двухпутного участка

Рисунок 9.10 – Схема ограждения мест производства работ на многопутном участке перегона, требующих остановки поездов:
а – крайнего пути трехпутного участка;
б – среднего пути трехпутного участка;
в – среднего пути четырехпутного участка

Рисунок 9.11 – Схема ограждения мест производства работ на перегоне, требующих следования поездов с уменьшенной скоростью:
а – на однопутном участке; б – на одном из путей двухпутного участка;
в – на обоих путях двухпутного участка

Рисунок Е.8 – Схема ограждения мест производства работ на перегоне переносными сигнальными знаками «С»: а – на однопутном участке; б – на двухпутном участке