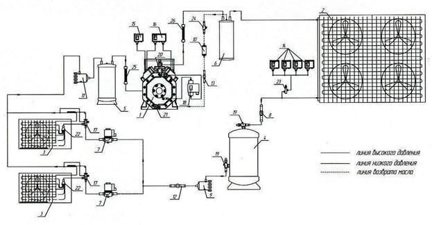
Схема и описание работы холодильной установки
На молочном комбинате используют одноступенчатую схему холодильной установки.

1- компрессор; 2 – конденсатор; 3 – испарителей; 4 – ресивер;
5 - отделитель жидкости; 6 – маслоотделитель; 7 - соленоидный вентиль;
9 - фильтр-осушитель; 10 – фильтр; 11 - фильтр на всасывающей магистрали; 12 - смотровое стекло с индикатором влажности; 13 - смотровое стекло;
14 - реле высокого давления; 15 - реле низкого давления;16 - аварийное реле высокого и низкого давлений; 17 - терморегулирующим вентиль; 18 - реле контроля давления масла; 19 - запорный вентиль ресивера; 20 – запорный вентиль компрессора; 21 - картерный нагреватель ; 25, 26 - виброизоляторы.
Рисунок 4 - Схема холодильной установки
Процесс охлаждения основан на физическом явлении поглощения тепла при кипении (испарении) жидкости (жидкого хладагента). Компрессор холодильной машины предназначен для отсасывания газа из испарителя и сжатия, нагнетания его в конденсатор. При сжатии и нагревании паров хладагента мы сообщаем им энергию (или тепло), охлаждая и расширяя, мы отбираем энергию. Это основной принцип, на основе которого происходит перенос тепла и работает холодильная установка. В холодильном оборудовании для переноса тепла применяют хладагенты.
Холодильный компрессор (1) отсасывает газообразный хладагент из испарителей (3), сжимает его и нагнетает в конденсатор (2) (воздушный или водяной). В конденсаторе (2) хладагент конденсируется и переходит в жидкое состояние. Из конденсатора (2) жидкий хладагент попадает в ресивер( 4), где происходит его накопление. Также ресивер необходим для постоянного поддержания необходимого уровня хладагента. Ресивер оснащен запорными вентилями (19) на входе и выходе. Из ресивера хладагент поступает в фильтр-осушитель (9), где происходит удаление остатков влаги, примесей и загрязнений, после этого проходит через смотровое стекло с индикатором влажности (12), соленоидный вентиль( 7) и дросселируется терморегулирующим вентилем (17) в испаритель (3).
Терморегулирующий вентиль применяется для регулирования подачи хладагента в испаритель.
В испарителе хладагент кипит, забирая тепло от объекта охлаждения. Пары хладагента из испарителя через фильтр на всасывающей магистрали (11), где происходит очистка их от загрязнений, и отделитель жидкости (5) поступают в компрессор (1).Затем цикл работы холодильной машины повторяется.
Отделитель жидкости (5) предотвращает попадание жидкого хладагента в компрессор.
Для обеспечения гарантированного возврата масла в картер компрессора на выходе из компрессора устанавливаться маслоотделитель (6). При этом масло через запорный вентиль (24), фильтр (10) и смотровое стекло( 13) по линии возврата масла поступает в компрессор.
Виброизоляторы (25),(26) на всасывающей и нагнетательной магистралях обеспечивают гашение вибраций при работе компрессора и препятствуют их распространению по холодильному контуру.
Компрессор оснащён картерным нагревателем (21) и двумя запорными вентилями( 20).
Картерный нагреватель (21) необходим для выпаривания хладагента из масла, предотвращения конденсации хладагента в картере компрессора во время его стоянки и поддержания необходимой температуры масла.
В холодильных машинах с полугерметичными поршневыми компрессорами, у которых в системе смазки используется масляный насос, применяется реле контроля давления масла (18). Это реле предназначено для аварийного отключения компрессора в случае снижения давления масла в системе смазки.
В случае установки агрегата на улице он должен быть дополнительно укомплектован гидравлическим регулятором давления конденсации, для обеспечения стабильной работы в зимних условиях и поддержания необходимого давления конденсации в холодное время года.
Реле высокого давления (14) управляют включением/выключением вентиляторов конденсатора, для поддержания необходимого давления конденсации.
Реле низкого давления (15) управляет включением/выключением компрессора.
Аварийное реле высокого и низкого давлений (16) предназначено для аварийного отключения компрессора в случае пониженного или повышенного давления.