Раздел 5. Проектирование котлованов.
5.1. Котлованы без креплений.
Котлованы без креплений с различной крутизной откосов (отношение высоты откоса к заложению) разрабатывают в сухих или маловлажных естественных или плотнослежавшихся насыпных грунтах.
Для котлованов глубиной свыше 5 м. крутизну откосов устанавливают по расчёту их устойчивости с использованием фактических расчётных характеристик сопротивления грунтов сдвигу.
Временная нагрузка (грунт, строительные материалы, транспортные средства) должна быть удалена от бровки котлована на расстояние не менее 1 м. и учтена при расчётах устойчивости откосов. Крутизну откосов котлована в глинистых грунтах, переувлажнённых дождевыми, снеговыми (талыми) и другими водами, следует уменьшать до естественного откоса. Переувлажнённые песчаные, лёссовидные и насыпные грунты разрабатывать без крепления нельзя.
При отрывке котлованов с наклонными стенками возрастает объём земляных работ, поэтому обычно устраивают котлованы с вертикальными стенками с креплениями.
Крепления стенок котлованов подразделяются на 2 группы: закладные и шпунтовые.
5.2. Закладные крепления.

Рис.52. Схема закладного крепления
с металлическими стойками: 1 – металлические стойки; 2 – осадки.
Закладные крепления устраивают, если уровень воды ниже дна котлована (когда приток воды в котлован небольшой).
Закладные крепления могут быть свободно стоящими и с распорками (анкерами).
5.3. Шпунтовые крепления.
Шпунтовые крепления устраивают, если уровень воды расположен выше дна котлована. Такое крепление состоит из основных вертикальных элементов – шпунтин, системы обвязок, распорок и анкеров. Шпунтовое крепление можно устраивать свободно стоящим с анкерами или распорками.
Шпунтины могут быть деревянными, железобетонными, металлическими.
Деревянные шпунтины устраивают при глубине котлована до 5 м. из досок и брусьев с продольным гребнем на ребре.

Рис.53. Деревянный шпунт: а) с прямоугольным
гребнем; б) с треугольным гребнем; в) составной
из досок.
Железобетонный шпунт редко используют для ограждения временных котлованов. Обычно он служит составной частью постоянного сооружения.
Недостатки – большая масса; значительные размеры поперечного сечения; трудно погружать в тяжёлые грунты.
Металлический шпунт применяют при глубине котлованов более 5 м., а также в труднопроходимых грунтах и при меньшей глубине. Возможно погружение даже в мягкие скальные грунты. Шпунт используется многократно.
1) ШП – 1(2) – шпунт плоский

2) ШК – 1(2) – шпунт корытный

Рис.54. Профили металлического шпунта
3) Л – IV(V) – шпунт типа «Ларсен»

4) ШД – 3(5) – шпунт зетовый
Рис.54. Профили металлического шпунта.
5.4. Выбор типа и схемы крепления.
Тип крепления (шпунтовое или закладное) и его материал выбирают, исходя из данных об области применения различных конструкций креплений.
Выбор схемы крепления заключается в определении, будет ли крепление свободно стоящим, с одним или несколькими ярусами распорок или анкеров.
5.5. Основы расчёта креплений стен котлована.
5.5.1. Определение давления грунта и воды на ограждение.
Боковое давление грунта, обусловленное его внутренним трением

где Рв – вертикальное давление на данном уровне;
и
– соответственно коэффициенты активного и пассивного давлений.

где q – внешняя распределённая нагрузка;
– расчётный удельный вес i-го слоя грунта; hi – мощность слоя.
При наличии у грунта удельного сцепления, активное давление снижается на величину
,
а пассивное увеличивается на величину
,
Наибольшее давление воды 
где
– удельный вес воды;
– разность уровней воды вне и внутри ограждения.
5.5.2. Расчёт закладного крепления.
1) Исходная задача: расчёт свободно стоящей стойки забитой в несвязный грунт и нагруженной горизонтальной силой.

Рис.55. Схемы к расчёту свободно стоящей стойки, нагруженной горизонтальной силой.
Расчёт заключается в определении необходимой глубины забивки стойки из условия устойчивости грунта и проверке сечения на прочность при изгибе. Сечение стойки предварительно назначают.
При глубине забивки стойки
устойчивость её в грунте оценивают по условию
,
где Ма – момент относительно точки поворота всех активных (опрокидывающих) сил относительно той же точки; Мп– момент пассивных (удерживающих) сил относительно той же точки;
– коэффициент условий работы;
– коэффициент надёжности.
– обобщённый коэффициент условий работы.
Полная глубина забивки стойки

Координату сечения с максимальным моментом в стойке находят из условия равенства нулю в этом сечении поперечной силы.

Требуемый момент сопротивления стойки

Расчётная ширина стойки
, где в – фактическая ширина стойки; а – постоянная добавка к ширине (инструкцией ВСН 173-78 рекомендуется а=0,3).

Стойка под действием горизонтальных сил работает в условиях пространственной задачи, вовлекая массив грунта, ширина которого превышает ширину стойки.
2) Расчёт свободно стоящего закладного крепления в несвязном однородном грунте.
а) Расчёт досок
Доски крепления рассчитывают на активное давление грунта Ра как балки на двух опорах пролётом l1, равному расстоянию между стойками. l1 находим из равенства
подставляя в него Mmax=
; 

Задаёмся толщиной доски
см. и находим l1

б) Расчёт стоек в составе крепления.

Рис.56. Расчётная схема свободно
стоящего закладного крепления.



5.5.3. Расчёт шпунтовых креплений.
1) Расчёт шпунтового крепления с одним ярусом распорок в несвязном однородном грунте.
;
;
.

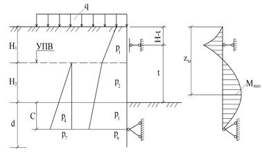
Рис.57. Расчётная схема для определения
глубины забивки шпунта.
Шпунтовое крепление рассчитывают на 1 п.м.
;
;
;
;
;
;
;
.
Сумма моментов определяется относительно точки О.
.

Рис.58. Схема для определения
профиля поперечного сечения.
;
;
;
Пассивное давление грунта ниже дна котлована в запас прочности обычно не учитывают.
по каталогу подбираем профиль шпунта.
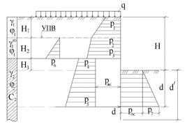
2) Особенности расчёта шпунтового ограждения при наличии связных грунтов, являющихся водоупором.
Расчёт ведут по двум схемам.
По первой схеме ниже кровли связного грунта с наружной стороны ограждения учитывают активное давление грунта, а давление воды на стенку не передаётся.
По второй схеме учитывают возможность образования промежутка (зазора) между грунтом и стенкой ниже кровли водоупора. Активное давление грунта водоупора на стенку не учитывают.

Рис.59. Расчётная схема (схема 1)
свободно стоящей шпунтовой стенки






Рис.60. Расчётная схема (схема 2)
свободно стоящей шпунтовой стенки.


Зазор будет образовываться, если 
Из двух значений d, установленных по обеим схемам принимают большее. Затем по выбранной схеме подбирают профиль шпунта.

5.6. Осушение котлованов.
Для осушения котлованов применяют следующие методы: открытый водоотлив, глубинный водоотлив (искусственное понижение уровня подземных вод), глубинный водоотлив с вакуумированием, электроосушение грунта.
5.6.1. Открытый водоотлив осуществляется непосредственно из котлована с помощью насосов, пригодных для откачивания загрязненной воды с примесью грунтовых частиц.

Рис.61. Схема открытого водоотлива: 1 – насос; 2 – всасывающий шланг; 3 – зумпор; 4 – канавки; 5 – шпунты; i – уклон канавки в сторону приямка (зумпфа), i=0,001…0,02.
Работы по водоотводу разбиваются на две стадии.
I стадия – уровень воды в котловане понижается на требуемую глубину;
II стадия – уровень воды поддерживается на заданной глубине на период бетонирования фундамента и в течении времени, необходимого для схватывания бетона.
Недостаток метода.
Так как фильтрация воды направлена вверх, это может привести к разрыхлению супесей, мелких и пылеватых песков; к разжижжению глинистых грунтов и дополнительному их набуханию.
Достоинства метода.
Является самым простым и дешёвым способом.
5.6.2. Глубинный водоотлив.
При глубинном водоотливе по периметру котлована на определённом расстоянии друг от друга устраивают скважины из которых откачивают воду. В результате уровень подземных вод понижается, что позволяет отрыть котлован насухо. Грунт основания уплотняется.

Рис.62. Схема понижения уровня грунтовых вод легкой иглофильтровой установкой: 1 – иглофильтр; 2 – коллектор; 3 – насосная установка.
Для глубинного водопонижения применяют два основных вида устройств: иглофильтровые установки и водопонизительные скважины с глубинными насосами.
5.6.3. Глубинный водоотлив с вакуумированием.
Целью вакуумирования скважин и грунтов является усиление эффекта водопонижения в неблагоприятных грунтовых условиях (при Кф=0,0030…0,0001 см/с).Устье скважины тампонируют глиной для предотвращения прорыва воздуха в скважину. При вакуумировании сокращается время осушения выработки вследствие более интенсивного притока воды к иглофильтрам под действием дополнительной разности напоров.
Благодаря уплотнению и возрастанию эффективного давления на скелет сопротивление сдвигу вакуумированного грунта возрастает,в результате чего увеличивается устойчивость откосов и дна котлована.
5.6.4. Электроосушение грунтов.
Сущность способа заключается в том, что через грунт между иглофильтрами – катодами и трубами – анодами, установленными по периметру котлована, пропускается электрический ток.
Под действием постоянного электрического тока свободная и часть связанной грунтовой воды перемещается от анода к катоду и откачивается иглофильтрами. Этот метод называется также электроосмотическим водопонижением. Применяется в глинистых грунтах с Кф< 0,00006 см/с.