Сенсоры
Для управления зданием, согласно проекта, смонтированны выключатели WSB-20 (40) (Рис. 8).

Рис. 8Настенный контроллер WSB-40
Настенные и групповые контроллеры серии WSB чаще всего используемые элементы (сенсоры) в системе INELS .
- Встроенные микрокнопки с низким .
- LED индикации каждого выключателя может сигнализировать о состоянии управляемого потребителя соответственно запрограмированного режима.
- Контроллеры поставляются как двухканальные(WSB2-20), четырехканальные(WSB2-40) и восьмиканальные (WSB2-80).
- Размеры всех вариантов соответствуют основным размерам модулей выключателей (89x85mm) серии изделий Elegant, а также могут быть скомбинированы в самых разных вариантах рамок классических изделий этой серии.
- Каждый контроллер имеет встроенный термосенсор , который позволяет использовать контроллер для замера температуры в данном помещении, для термометрии можно использовать контроллер с оптимальным размещением.
- Главная выгода в сравнении со стандартными кнопочным выключателем - это экономия площади и комфортное управление. Вместо большого количества стандартных выключателей можно применить, например, один групповой выключатель WSB2-80.
- Каждый канал (кнопка) может управлять любым исполнителем (потребителем) в системе. Кроме этого, каждой кнопке можно присвоить другую функцию или макро (набор функций). В этом случае можно управлять несколькими потребителями одновременно
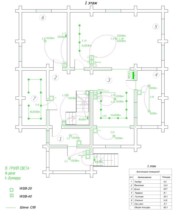
На рисунке 9 показан план размещения выключателей и их привязка к потребителю первого этажа, аналогично выполнены другие площади.

Рис. 9План размещения и привязке сенсоров первого этажа