Виды колонн одноэтажных промышленных зданий. Назначение закладных деталей.
Для устройства каркасов одноэтажных промышленных зданий применяют железобетонные и стальные колонны.
Железобетонные колонны одноэтажных промышленных зданий (рис. 26) могут быть с консолями и без них (если отсутствуют мостовые краны). По расположению в плане их подразделяют на колонны средних и крайних рядов.
В зависимости от поперечного сечения колонны бывают прямоугольные, таврового профиля и двухветвевые. Размеры поперечного сечения зависят от действующих нагрузок. Применяют следующие унифицированные размеры сечений колонн: 400х400,

Рис. 25. Фундаменты одноэтажных промышленных зданий а) типы фундаментных балок; б), в) детали фундаментов крайнего ряда колонн; 1-песок; 2 - щебеночная подготовка; 3 - Асфальтовое или бетонное покрытие (отмостка); 4-гидроизоляция; 5-колонна; 6-шлак или крупнозернистый песок; 7-железобетонные столбики; 8-фундаментная балка.

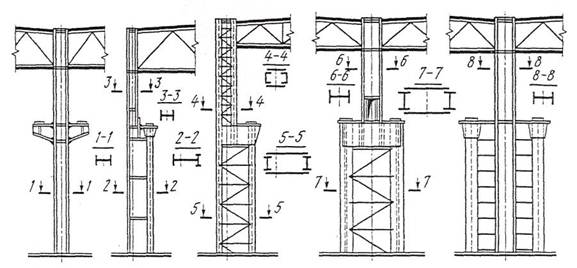
Рис. 26. Основные типы железобетонных колонн одноэтажных промышленных зданий. а) прямоугольного сечения для здания без мостовых кранов при шаге 6м; б) то же, при шаге 12 м; в) двухветвевые для зданий без мостовых кранов; г) прямоугольного сечения для кранов с мостовыми кранами; д) то же, двутаврового сечения; е) двухветвевые для зданий с мостовыми кранами; ж) общий вид колонны; 1 -закладная деталь для крепления несущей конструкции покрытия; 2 ,3 -то же, подкрановой балки; 4 -то же, стеновых панелей.

Рис. 27. Основные типы стальных колонн
а) постоянного сечения, б), г) переменного сечения, д) раздельная
600х600, 400х800, 500х500, 500х600, 500х800 мм - для прямоугольных; 400х600 и 800х800 мм — для тавровых и 400х1000, 500х1000, 500х1300, 500х1400, 500х500, 600х1400, 600х1900 и 600х2400 мм — для двухветвевых. Колонны могут быть из нескольких частей, которые собирают на строительной площадке.
Колонны с консолями состоят из надкрановой и подкрановой ветвей. Сечение- подкрановых ветвей чаще всего квадратное или прямоугольное: 400х400 или 500х500мм. Для изготовления колонн применяют бетон классов В15, В40 и арматуру различных классов.
Длину колонн принимают с учетом высоты цеха и глубины их заделки в фундамент, которая может быть: для колонн прямоугольного сечения без мостовых кранов — 750 мм, для колонн прямоугольного и двутаврового сечения с мостовыми кранами — 850мм; для двухветвевых колонн-900- 1200 мм.
В колоннах предусматриваются закладные детали (рис.2б,ж):
1 - для крепления несущих конструкций покрытия (стальной лист, приваренный к специальной арматуре); 2 - для крепления подкрановых балок от опрокидывания под действием тормозных сил; 3 - для крепления подкрановых балок от смещения (стальной лист с четырьмя болтами М16); 4 - для крепления стеновых панелей (63х5, приваренных к арматуре каркаса до бетонирования колонн).
Кроме основных колонн для устройства фахверков используют фахверковые колонны. Их устанавливают вдоль здания при шаге крайних колонн 12 м и размере панелей стен 6 м, а также в торцах зданий.
Стальные колонны одноэтажных зданий могут иметь постоянное по высоте сечение и переменное. В свою очередь, колонны с переменным сечением могут быть с подкрановой частью сплошного и сквозного сечения (рис.27). Сквозные колонны подразделяют на колонны с ветвями, соединенными связями, и колонны раздельные, которые состоят из независимо работающих шатровой и подкрановой ветвей. Колонны постоянного сечения используют при применении кранов грузоподъемностью до 20 т и высоте здания до 9,6 м.
В случаях, когда колонны в основном работают на центральное сжатие, применяют колонны сплошного сечения. Для изготовления сплошных колонн применяют широкополочный прокатный или сварной двутавр, а для сквозных колонн могут быть использованы также двутавры, швеллеры и втолки.
Раздельные колонны устраивают в зданиях с тяжелыми мостовыми кранами (125т и более). В нижней части колонн для сопряжения с фундаментами предусматривают стальные базы (башмаки). Базы к фундаментам крепят анкерными болтами, закладываемыми в фундамент при их изготовлении. Нижнюю опорную часть колонны вместе с базой покрывают слоем бетона