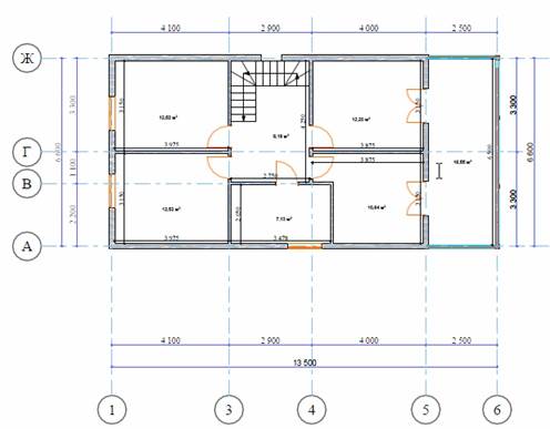
Лабораторная работа № 5
Построение плана второго этажа

1. В Навигаторе выбираем лист 2-й этаж. С этажами можно также работать в меню Конструирование – Установка этажей: задавать уровни, высоты. Следует быть внимательными и случайно не удалить этаж, потому что эту операцию восстановить будет невозможно.
2. Нужно создать листы под этажи. Открываем Установка этажей,оставляем один 1-й этаж и нажимаем два раза на кнопку Поместить над,появляется 2-й и 3-й этажи.

В Навигаторе установить 3-й этаж. Если нажать Shift+F2 – переход на этаж выше Ctrl+F2 –на этаж ниже.
3. Скопируем план 1-го этажа на второй этаж. Для этого в Навигаторе на отметке 1-й этаж кликаем правой кнопкой мыши и выбираем пункт Редактировать элементы по этажамв открывшемся диалоге отмечаем те елементы, которые нужно копировать- Стена и Перекрытие, выбираем действие Скопировать(можно вырезать, удалить) с 1-го этажа на 2-й.

Этими действиями можно выполнить копирование на любое количество этажей. У нас только один 2-й этаж.Теперь у нас 2 этажа
Убедитесь, что копирование произошло.
3. Устанавливаем конструкторскую сетку на втором этаже. Заходим в Конструирование – система сеткии в диалоговом окне заданные параметры не изменяем, т.к. сетка практически такая же. Устанавливаем сетку на плане.
4. Далее необходимо удалить лишние линии – оставляем линии А, В, Г, Ж, корректируем расположение размеров и удаляем линию 2.
5. Удаляем лишние стены, двери. Подводим курсор к уголку двери, щелкаем и нажимаем Delete. Также удаляем дверной проём.

6. Следующим действием будет копирование двери с теми же параметрами. Выбираем инструмент пипетка,подводим её к исходной стене. Выделяется инструмент Стена на панели и её параметры автоматически устанавливаются соответственно исходной. Строим стену в нужном месте.


7. Передвигаем стену в другое место. Выделяем её , щёлкаем правой клавишей мыши и в контекстном меню выбираем пункт Изменить расположение,далее выбираем команду Переместитьи показываем курсором куда необходимо переместить.

8. Внимательно изучите все операции окна изменения расположения.

9. Далее одну вертикальную стену нужно укоротить. Выделяем стену, фиксируем нижню точку курсором, появляется табло слежения с пиктограмами выполняемых операций и перемещаем курсор до нужного места. Нас интересует операция Изменение размеров.

Получаем:

9. Следующий шаг – необходимо дорисовать стену немного дальше той , которую укоротили. Стена должна быть располжена на расстоянии 3528+ от точки стены ближней слева. Выбираем инструмент Линияна панели, устанавливаем курсор в указанную точку и вводим значение координаты Х 3528+Enterи проводим отрезок до осевой линии. Дальше удлиняем горизонтальную стену до пересечения с линией. На месте линии строим стену, параметры которой взяты пипеткой из предыдущей стены.

10. Удаляем построенную линию и дверь. Для удаления лишней части перекрытия, нужно его выделить, использовать инструмент Перекрытие,
Щелкнуть в угловой точке, выбрать из появившейся панели инструмент
(удаление из прямоугольника) и построить прямоугольник, он удалится.

11. Входим в 3D-вид и смотрим что получилось.

12. Расставим двери. Дверь в комнату, шириной 800мм, немного переместим вверх, а дверь в санузел удалим и вместо неё поставим дверь с параметрами (использовать пипетку) предыдущей двери и в том же направлении.
13.
Таким же образом вставить двери справа.

14. Ещё одну дверь нужно повернуть в противоположное направление. Для этого нужно её выделить, щелкнуть правой клавишей и в диалоге в пункте Изменить расположение выбрать Зеркальное отражение.Щелкнуть мышкой в точке посередине и дверь развернётся.
15. Убираем окна на крайней стене справа и внизу, левое окно перемещаем, выделив его и используя команду Переместить
.

Построенное окно нужно скопировать на крайнюю стену слева самостоятельно. Получаем следующий вид.

16. Следующий этап – поставить двустворчатые двери. Выбираем инструмент двери на панели инструментов, в параметрах из библиотеки выбираем
, ширина 1500мм, в Параметрах материалы не меняем, стекло сделаем голубое. Дверное полотно выбрать Стиль 13, ручка – Стиль4.
Поставить две двери с привязкой по центру на стену справа(см. план 2-го этажа). План готов.

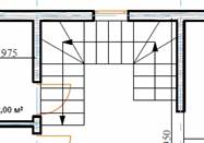
17. Вставим лестницу. Лестница должна быть длиной 2750мм, длиной слева 2100мм, ширина марша 1100мм, длина справа 1900мм, высота 3100мм.

18. Выбираем инструмент Лестница на панели. Заходим в Параметрыи нажимаем на кнопку Создать Лестницу.Появляется окно с типами лестниц, выбираем нужный тип и задаём значения параметров.


19. Задаём проступни , выбираем тип проступней.

Задаём материалы, все сделаем из дерева. Дополнительные параметры проступней.

Ограждения сделаем по внутренней части, т.к. по внешней идет стена. Задаём тип ограждения 
20. Щелкаем на внешней части лестницы на примере в окне параметров и в таблице Параметры ограждениязадаём Без ограждения

С внутренней стороны щелкаем и выбираем тип –Деревянное.Остальные параметры можно оставить без изменения или изменить по-своему.
21. Далее задаём стойки. Выбираем тип На расстоянии – 800мм.
22. Выбираем вариант изображения лестницы в 2D-виде, т.е. в плане, вид стрелок, маркеров и т.д.

23. В поле Реквизиты в таблице Показ текстаубираемПоказать нумерацию-Нет. Текст подступенькой и проступней -задать Нет. Пункт 2D выше собств. этажа – Показ 2D под отметкой разрыва задать-Нет. И пункт Показать нумерацию – задать Нет.
24. Выполняем операцию проверки задания параметров- кнопка Проверить.Выдаётся ошибка.

Меняем Параметры забежной области,проверяем, снова ошибка. Задаём другой тип проступней - Нажимаем проверить – всё правильно.

Выполняем команду Сохранить как , даём название – Лестница 1 и ОК.
25. Теперь ставим лестницу в плане. Переходим на 1-й этаж , заходим в параметры лестницы и изменяем направление для этого нажимаем на Зеркальное отражение.

26. В таблице Показ на плане этажа задаём Собственный этаж и Этажом выше, это нужно, чтобы лестница была видна и на плане 2-го этажа.
27. Задаём привязку на угол, ОК, выходим в план и вставляем лестницу.

Лестница получилась шире, чем нужно. Редактируем, выделяем и входим в параметры и видим, что изменилась ширина – стала 2810мм, вместо 2750. Вводим это значение. Нажимаем 2 раза ОК. Теперь лестница правильной ширины.
28. Переходим на 2-й этаж, лестница должна быть видна.

29. Для того, чтобы лестница была видна в 3D-виде, нужно вырезать часть перекрытия на втором этаже. Выделяем перекрытие, берём инструмент Перекрытиена панели и рисуем прямоугольник , который надо вырезать

30. Переходим в 3D-вид и видим лестницу.
