КОНСТРУКТИВНЫЕ СХЕМЫ ОФИСНЫХ ПОМЕЩЕНИЙ
Конструктивные схемы и их влияние на выделение отдельных помещений с помощью переставных перегородок. Различие между продольными и поперечными схемами каркаса показано на рис. 1 — 4. При монолитных железобетонных конструкциях перекрытия опираются только на прогоны, при стальных и сборных железобетонных конструкциях перекрытия нередко опираются как на прогоны, так и на второстепенные балки (сокращение пролетов, облегчение монтажа).
На рис. 1 оси перегородок и колонн каркаса совпадают, сечение наружных колонн — минимальное, узлы примыкания перегородок к колоннам решаются оптимально. На рис. 2 не все оси перегородок и несущих колонн каркаса совпадают, однако перегородки примыкают к колоннам одинакового поперечного сечения. На рис. 3, 7 —9 перегородки примыкают к наружным несущим колоннам каркаса, места примыканий совпадают с сеткой членений наружной стены. Поверхность фасадной стены может совпадать с наружным или внутренним краем несущих колонн, а также может быть вынесена за пределы поверхности колонн или отодвинута внутрь. Различия узлов примыкания перегородок и длин элементов перегородок усложняет конструктивное решение. Интерьер помещений, где перегородки примыкают и к основным несущим колоннам, и к импостам, производит неблагоприятное впечатление. Такая конструктивная схема целесообразна только для зальных помещений и часто используется в США (рис 8 и 9). При решениях, показанных на рис 4, 5, 6, 10—12, благодаря разделению несущей и ограждающей конструкций достигается большая свобода в планировке помещений. Возможно расположение несущих колонн снаружи (рис. 5 и 6), при этом следует учитывать условия крепления фасадной стены и влияние атмосферных воздействий. Возможно также размещение несущих колони внутри помещения с большим отступом от фасадной плоскости и с устройством консольно выступающих перекрытий (рис. 4, 10, 11). Последнее решение эффективно при выносе консоли на 1/5 —1/3 шага несущих колонн.
При таком решении возможно устройство помещений разной величины: от отдельных кабинетов до зальных помещений. Пространство между колоннами, расположенными с отступом от наружной стены, используют для стеллажей или проходов (рис. 9 —12). Особое внимание при таком решении следует уделить конструктивному решению углов здания (рис. 11 —12).
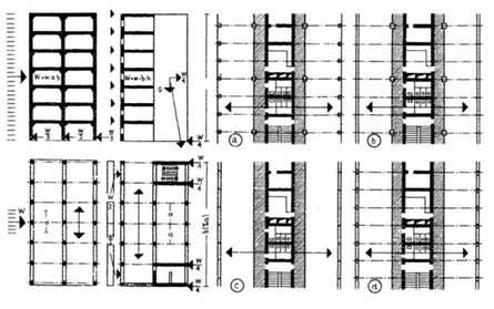
Ввиду снижения поперечных сечений конструкций несущего каркаса до минимума и перехода от массивных стен к каркасу жесткость здания и сопротивление ветровым нагрузкам за счет его массивности не обеспечиваются. Необходимая жесткость создается путем устройства жестких рам (рис. 13), а также устройства стен-диафрагм жесткости, связанных с плитами перекрытий и жесткими узлам здания (лестничные клетки, шахты лифтов, подсобные помещения). На последние передаются горизонтальные усилия от перекрытий, что способствует повышению устойчивости здания (рис. 15, a-d).
| 1. Все фасадные колонны — несущие; продольные прогоны. 2. Каждая четвертая фасадная колонна — несущая: продольные прогоны. 3. Предусмотрено крепление переставных перегородок к импостам окон; поперечные прогоны. 4. Отделение ограждающих конструкций от несущих. |
| 5, 6, 7, 8, 9, 10, 11, 12. Влияние конструктивной схемы на возможности разделения конторской площади с помощью передвижных перегородок колонны, вынесенные наружу (рис. 5 —4); колонны в плоскости фасадов или непосредственно к ней примыкающие (рис. 7 —9); колонны находятся в глубине помещения (рис. 10 —12): На рис. 11 и 12 показаны варианты решения угла зданий. |
| 13. Пространственная жесткость придана зданию с помощью рамных конструкций, передающих усилия от ветровой нагрузки на фундаменты. 14. Пространственная жесткость придана зданию с помощью жестких поперечных стен. 15. Четыре возможных варианта передачи вертикальных нагрузок на колонны и среднее несущее ядро здания (при двухкоридорной схеме планировки). |
Ориентация конторских зданий но странам света различна. По данным Розенауера 90% всех конторских зданий в США имеют широтную ориентацию, поскольку глубоко проникающие лучи восходящего и заходящего солнца мешают работе. От лучей полуденного солнца можно защититься с помощью солнцезащитных устройств.
Согласно данным Йодике, главная ось здания должна быть ориентирована меридионально, поскольку это обеспечивает инсоляцию всех помещений. Ориентация конторских помещений на север допускается лишь при бескоридорной системе планировки.
Здания с односторонним расположением помещений вдоль коридора неэкономичны; эта система допустима лишь при устройстве глубоких конторских помещений, в которых не может быть обеспечено естественное освещение (рис. 2). Здания с двусторонним расположением помещений вдоль центрального коридора позволяют обеспечить естественным освещением все рабочие помещения. Такое решение типично для административных зданий с отдельными кабинетами и небольшими групповыми конторскими помещениями (рис. 4).
Двухкоридорная система планировки характерна для высотных конторских зданий (рис. 3).
Бескоридорную планировку широко применяют в зданиях, расположенных в городских центрах США. Все помещения с естественным или искусственным освещением группируются вокруг ядра вертикальных коммуникаций (лифты, лестничные клетки, вентиляционные шахты) или около вынесенного за пределы здания конструктивного опорного пункта.
Для конторских зданий, расположенных за городом, принята новая планировочная система: центральную часть здания занимает зальное помещение, защищенное надежной звукоизоляцией, со светящимся потолком и искусственной вентиляцией; по периметру располагаются небольшие конторские помещения с естественным освещением.
Конторские здания могут быть расположены в центральной части города, на его окраине, за городом, вблизи предприятий. При проектировании должны быть учтены возможности дальнейшего расширения здания и решены вопросы организации проездов и подходов к зданию, а также устройства автомобильных стоянок.
Подробное изучение существующих конторских зданий позволяет определить функции и взаимосвязи, возникающие в ходе рабочего процесса, и дает возможность сформулировать задание на проектирование. Эскизный проект должен содержать предложения по рациональному разделению основных функциональных зон и отделов, а также их расположению в здании.
В задании на проектирование указывают:
1. Перечень помещений для сотрудников: а) рабочие помещения (от дирекции до архива); б) помещения бытового назначения (столовая, буфет, кухня, кубовая, уборные, умывальные, иногда — душевые, гардеробы). Отдых во время коротких перерывов должен быть организован в специальных помещениях. Следует предусмотреть балконы для отдыха на свежем воздухе, комнаты отдыха и туалетные для женского персонала.
2. Помещения для посетителей.
3. Помещения для размещения и обслуживания установок инженерного оборудования.
| 1. Схема организации труда в учреждении. Верхняя часть схемы относится к любому виду трудовой деятельности, нижняя— только к конторской работе. Задачи, указанные в левой половине схемы, могут быть решены посредством профилактических и педагогических мероприятий; задачи, указанные в правой половине схемы, большей частью могут быть решены посредством мероприятий технического и организационного характера. |
| 2. Одностороннее расположение помещений вдоль коридора экономично лишь при очень глубоких рабочих помещениях. 3. Двухкоридорная система планировки. 4. Однокоридорная схема планировки (двустороннее расположение помещений вдоль коридора). 5. Бескоридорная планировка. |
| 6. Таблица к выбору планировочного решения здания. Оценивая числом условных очков пути движения служащих с учетом их заработной платы в 1 ч, составляют схему коммуникаций 7. Треугольная схема. Схематическое распределение отделов в соответствии с числом условных очков и требуемой для них площадью. |
| Крупные конторские здания, как правило, многоэтажные, проектируемые с учетом перемещения передвижных перегородок, устраиваемых на всю высоту помещений. Санитарные узлы, лестничные клетки, шахты лифтов и т.п. располагают либо на расстоянии, соответствующем Строительным правилам***, в пристройках к основному объему здания (рис, 1 и 2), у одной из сторон здания (рис. 3—5), во входящих углах (рис. 6, 10—12, 15, 16), в концах отдельных крыльев здания (рис. 8, 9, 11, 12, 14), либо между коридорами возле светового дворика (рис. 17—21) с тем, чтобы в планировке здания выделить максимально допустимый по длине непрерывный ряд взаимосвязанных рабочих помещений. Расположение опор в один ряд по оси здания (рис. 1 и 2) позволяет размещать коридор справа или слева от опор в зависимости от необходимости устройства помещений той или иной площади. Расположение опор в два ряда (рис. 3—6) даёт возможность устройства помещений одинаковой глубины. Коридоры при этом освещаются вторым светом через фрамуги и остекленные двери в перегородках. Наиболее экономичным является торцовое освещение коридоров в зданиях небольшой протяжённости (рис. 13), в зданиях с поперечными крыльями (рис. 10 и 11), в зданиях Г-образной формы (рис. 12), Т-образной формы (рис. 15), П-образной формы в плане (рис. 16), в зданиях сложной конфигурации со смешанными в плане корпусами и крестообразной формой основной части здания, в центре которой размещены шахты для группы лифтов. Боковое освещение коридоров через световые разрывы менее экономично (рис. 7 и 8). При строительстве зданий на глубоких дорогостоящих участках, где по экономическим соображениям приходится увеличивать ширину корпусов, целесообразно коридоры и подсобные помещения, архивы, санитарные узлы и гардеробы размещать около световых двориков (рис. 17—20). Во входящих углах зданий размещают лестничные клетки, шахты лифтов и санитарные узлы; в лишенных естественного освещения частях здания располагаются тёмные комнаты, сейфы и кладовые (рис. 10, 11 и 19). *** Согласно § 17 «Единых строительных правил», расстояние от каждого помещения, предназначенного для длительного пребывания людей, до лестничной клетки должно превышать 25 м (считая от середины помещения до двери лестничной клетки). 21. Согласно западноберлинским Строительным правилам, § 17, расстояние от любой точки каждого из помещений для длительного пребывания людей до выхода на лестницу не должно превышать 30 м, в связи с чем обычно лестничные клетки размещают на расстоянии 25 м от торцов здания и на расстоянии 50 м друг от друга. |
