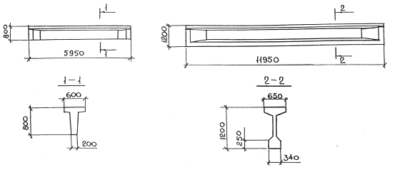
Балки подкрановые ж/б пролетами 6 и 12 м под мостовые краны, серия 1.426.1

| Марка балки | Грузоподъемность крана, т | Расход материалов | Масса балки, т | |
| Бетон, м3 | Сталь, кг | |||
| Балки пролетом 6 м | ||||
| БК6-1АIV-С | 1,4 | 3,5 | ||
| БК6-1АIV-К | ||||
| БК6-1АIV-Т | ||||
| БК6-2АIV-С | 12,5 | |||
| БК6-2АIV-К | ||||
| БК6-2АIV-Т | ||||
| БК6-3АIV-С | 15/3 | |||
| БК6-3АIV-К | ||||
| БК6-3АIV-Т | ||||
| БК6-4АIV-С | 20/5 | |||
| БК6-4АIV-К | ||||
| БК6-4АIV-Т | ||||
| БК6-5АIV-С | 30/5 32/5 | |||
| БК6-5АIV-К | ||||
| БК6-5АIV-Т | ||||
| БК6-6АIV-С | 15/3 | |||
| БК6-6АIV-К | ||||
| БК6-6АIV-Т | ||||
| БК6-6АV-С | ||||
| БК6-6АV-К | ||||
| БК6-6АV-Т | ||||
| БК6-6К7-С | ||||
| БК6-6К7-К | ||||
| БК6-6К7-Т | ||||
| БК6-7АIV-С | 20/5 | |||
| БК6-7АIV-К | ||||
| БК6-7АIV-Т | ||||
| БК6-7АV-С | ||||
| БК6-7АV-К | ||||
| БК6-7АV-Т | ||||
| БК6-7К7-С | ||||
| БК6-7К7-К | ||||
| БК6-7К7-Т | ||||
| БК6-8АIV-С | 30/5 32/5 | 1,4 | 3,5 | |
| БК6-8АIV-К | ||||
| БК6-8АIV-Т | ||||
| БК6-8АV-С | ||||
| БК6-8АV-К | ||||
| БК6-8АV-Т | ||||
| БК6-8К7-С | ||||
| БК6-8К7-К | ||||
| БК6-8К7-Т | ||||
| Балки пролетом 12 м | ||||
| БК12-1АIV-С | 4,1 | 10,5 | ||
| БК12-1АIV-К | ||||
| БК12-1АIV-Т | ||||
| БК12-2АIV-С | 10; 12,5 | |||
| БК12-2АIV-К | ||||
| БК12-2АIV-Т | ||||
| БК12-3АIV-С | 15/3 | |||
| БК12-3АIV-К | ||||
| БК12-3АIV-Т | ||||
| БК12-4АIV-С | 20/5 | |||
| БК12-4АIV-К | ||||
| БК12-4АIV-Т | ||||
| БК12-5АIV-С | 30/5 32/5 | |||
| БК12-5АIV-К | ||||
| БК12-5АIV-Т | ||||
| БК12-6АIV-С | 15/3 | |||
| БК12-6АIV-К | ||||
| БК12-6АIV-Т |
БК6-4АIV-К
БК – балка подкрановая,
6 – пролет,
4 – несущая способность балки,
АIV – вид арматуры,
К – крайний пролет, С – средний пролет, Т – пролет у температурного шва.