Выбор оборудования для приготовления растворов
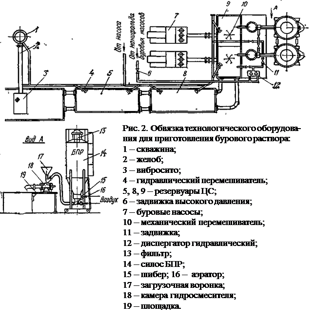
В современных условиях бурения для приготовления бурового раствора используется следующее оборудование: блок приготовления растворов БПР-70 с выносными гидроэжекторными смесителями и загрузочными воронками, емкости циркуляционной системы с гидравлическими и механическими перемешивателями, диспергатор, насосы.
В таблице 22 приведен состав оборудования для приготовления и очистки бурового раствора, применяемый в УУБР.
Таблица 22
Оборудование для приготовления и очистки бурового раствора
| Название | Типоразмер или шифр | Количество, шт | Показатель |
| Блок очистки | |||
| Вибросито | СВ-1л | Общая площадь раб. поверхности 2,4-4,8 м3 | |
| Илоотделитель гидроциклонный | ИГ-45М | Пропускная способность – 45 л/с Размер удаляемых на 95% частиц плотностью 2,6 г/см3 – 0,08 мм Допустимые потери раствора – 2% | |
| Центрифуга | СГШ-500 | Нет данных | |
| Дегазатор | ДВС-2 | Пропускная способность – 55 л/с Допустимое остаточное газосодержание в растворе – 2% | |
| Насос шламовый | 6Ш8 | Нет данных | |
| Насос водяной | 1,5К6 | Нет данных | |
| Емкость | – | 10 м3 | |
| Емкостный блок | |||
| Емкость приемная | – | 40 м3 | |
| Перемешиватели механические | – | Частота вращения лопастного вала – 45-90 об/мин | |
| Емкость долива | – | Емкость – 15 м3 | |
| Глиномешалка | МГ2-4Х | Нет данных | |
| Гидромешалка | – | Емкость – 30 м3 | |
| Емкость водяная | – | Емкость – 8 м3 | |
| Емкость дозировочная | – | Емкость – 0,2 м3 | |
| Емкость доливная | – | Емкость – 50 м3 | |
| Емкость для раствора | – | Емкость – 50 м3 | |
| В растворном узле кран поворотный | 8КП-2 | Нет данных |